首页 > 裝修案例 > 丰县小户型原木北欧风|简约舒适,实用与颜值并存

丰县小户型原木北欧风|简约舒适,实用与颜值并存

风格:原木风 面积:124m² 户型: 小区: 龙城樾府
业主需求
丰县小户型原木北欧风|简约舒适,实用与颜值并存-业主需求
两居室,两室朝阳,采光条件好,原木风,以简约、舒适、温馨为核心。注重实用性,需满足休闲娱乐、充足储物、空间利用等需求,简洁大方,兼具时尚感与生活气息。
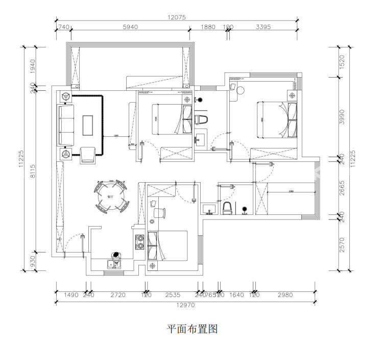
平面布置图
丰县小户型原木北欧风|简约舒适,实用与颜值并存-平面布置图
两室户型,空间方正,采光充足,无复杂结构改动需求,基础条件适配原木北欧风简约设计。
空间效果图
丰县小户型原木北欧风|简约舒适,实用与颜值并存-空间效果图
原木北欧风,整体简洁通透,凸显温馨质感,浅色系墙面搭配原木家具,弱化厚重感。电视墙简约无复杂造型,搭配绿植与装饰画点缀,地面通铺木地板,提升空间温暖度。阳台整合洗衣区与休闲区,功能分区清晰利用采光优势,搭配柔和灯光,营造松弛治愈的居家氛围。
丰县小户型原木北欧风|简约舒适,实用与颜值并存-空间效果图
白色通顶橱柜+原木台面,简约整洁;圆形餐桌搭配木质餐椅,适配小户型;墙面留白+小装饰点缀,简约不单调。整合收纳与用餐功能,空间利用率高,兼具实用性与颜值。
丰县小户型原木北欧风|简约舒适,实用与颜值并存-空间效果图
简约大方,以舒适睡眠为核心。浅色系墙面搭配原木床具,色调柔和;蓝色系软装点缀,提升空间层次感;大窗户搭配双层窗帘,兼顾采光与隐私。色调清爽,布局简洁,营造静谧放松的睡眠环境。
#  原木风  124m²    效果图  #
103
不喜欢
猜你喜欢
关闭
按此效果装修多少钱?
电话咨询 在线咨询 算算我家报价
按此效果装修多少钱?
按此效果装修多少钱?
更多相似风格效果
按此效果装修多少钱?
更多相似风格效果
按此效果装修多少钱?
更多相似风格效果
按此效果装修多少钱?