首页 > 裝修案例 > 丰县法式中古风|浪漫复古温馨有情调!

丰县法式中古风|浪漫复古温馨有情调!

风格:美拉德复古风 面积:128m² 户型: 小区: 珍宝岛
业主需求
丰县法式中古风|浪漫复古温馨有情调!-业主需求
双卧室朝阳,采光条件优越,偏爱法式中古风,追求浪漫复古、温馨有质感的居住氛围。注重空间实用性,兼顾休闲娱乐与收纳需求,拒绝单调,希望打造有格调、不压抑的居家环境。 。
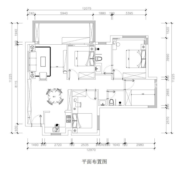
平面布置图
丰县法式中古风|浪漫复古温馨有情调!-平面布置图
 客餐一体开放式布局,增强空间通透感与互动性,优化动线设计,入户至各区域动线流畅。预留休闲角落,满足日常放松、小聚需求,合理规划收纳空间,兼顾美观与实用性。
空间效果图
丰县法式中古风|浪漫复古温馨有情调!-空间效果图
奶白护墙板+弧形拱门,搭配复古艺术画墙,法式氛围感拉满;黑色拉扣真皮沙发奠定复古基调,人字拼木地板+花纹地毯提升质感;复古吊灯+暖光设计,营造温馨慵懒氛围。法式优雅与中古复古融合,简约不简单,高级感十足。
丰县法式中古风|浪漫复古温馨有情调!-空间效果图
法式雕花吊顶+拱形门洞,延续整体风格;胡桃木圆桌搭配藤编、皮质餐椅,中古质感拉满;绿植与花艺点缀,增添自然生机。圆桌设计适配多人用餐,空间利用率高,兼具颜值与实用性。
#  美拉德复古风  128m²    效果图  #
128
不喜欢
猜你喜欢
关闭
按此效果装修多少钱?
电话咨询 在线咨询 算算我家报价
按此效果装修多少钱?
按此效果装修多少钱?
更多相似风格效果
按此效果装修多少钱?
更多相似风格效果
按此效果装修多少钱?