首页 > 裝修案例 > 意式轻奢大平层|高级质感,演绎精致生活

意式轻奢大平层|高级质感,演绎精致生活

风格:现代轻奢 面积:183m² 户型: 小区: 翡翠园
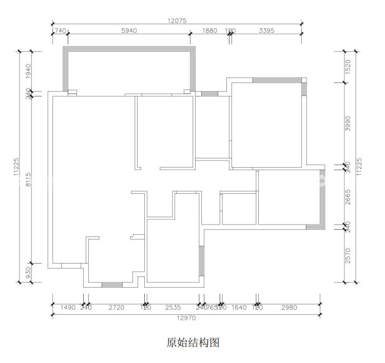
业主需求
意式轻奢大平层|高级质感,演绎精致生活-业主需求
大平层户型,客餐厅通透开阔。业主追求意式轻奢风格,偏爱高级质感与低调奢华,注重空间的大气感、收纳实用性,希望整体设计简约不简单,彰显品味与格调。
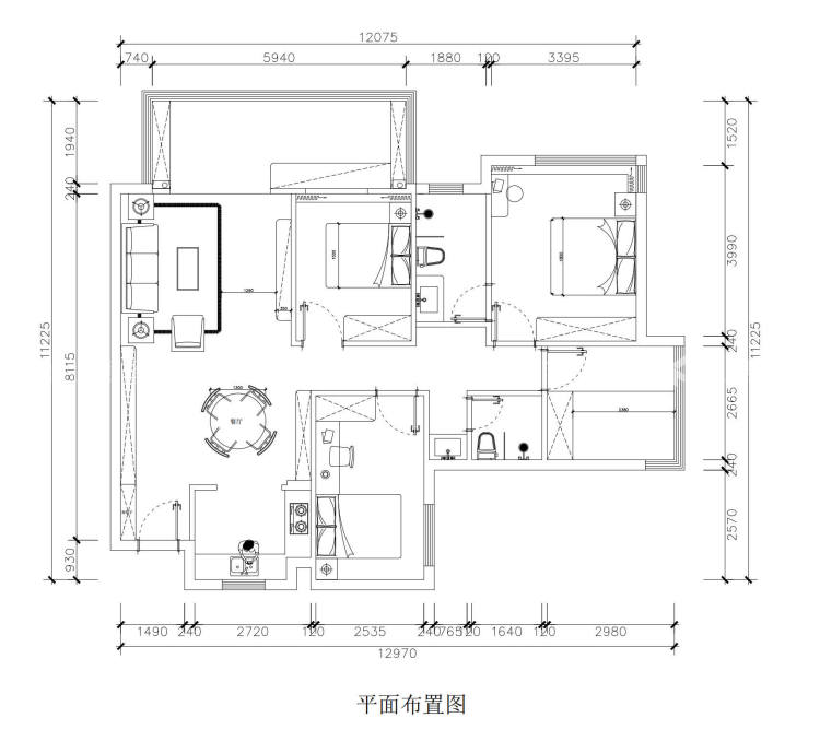
平面布置图
意式轻奢大平层|高级质感,演绎精致生活-平面布置图
客餐厅一体化布局,优化动线提升空间利用率;无过多墙体改造,保留大平层通透优势;合理划分休闲、用餐、收纳区域,兼顾美观与实用,满足高品质生活需求。
空间效果图
意式轻奢大平层|高级质感,演绎精致生活-空间效果图
客厅以意式轻奢为基调,无主灯吊顶搭配线性灯带,营造高级光影氛围;黑色皮质模块沙发搭配大理石茶几,沉稳大气;通铺大尺寸柔光砖,搭配艺术地毯,提升空间质感;大面积落地窗引入自然光,通透敞亮。
意式轻奢大平层|高级质感,演绎精致生活-空间效果图
餐厅与客厅无缝衔接,浅灰哑光柜体搭配深色岩板餐桌,轻奢简约;餐边柜+酒柜一体化设计,满足收纳与展示需求;木格栅背景墙+艺术挂饰,提升层次感;线性吊灯点缀,精致高级,实用与颜值兼具。
#  现代轻奢  183m²    效果图  #
141
不喜欢
猜你喜欢
关闭
按此效果装修多少钱?
电话咨询 在线咨询 算算我家报价
按此效果装修多少钱?
按此效果装修多少钱?
更多相似风格效果
按此效果装修多少钱?
更多相似风格效果
按此效果装修多少钱?