首页 > 裝修案例 > 140平湖湾一号现代风格

140平湖湾一号现代风格

风格:现代简约 面积:140m² 户型:
业主需求
140平湖湾一号现代风格-业主需求 140平湖湾一号现代风格-业主需求
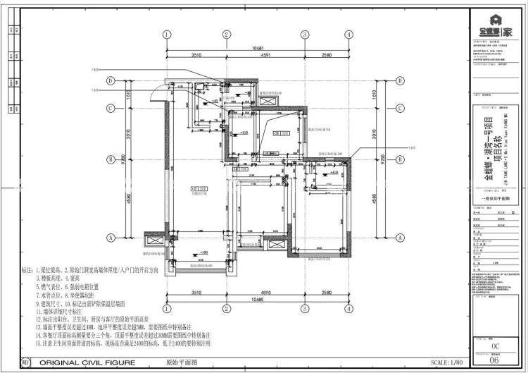
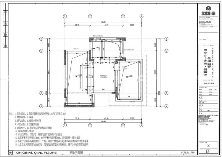
原户型为伪4室3卫双阳台双花园跃层,为何说伪呢,因为有一个卧室根本无法使用,在楼梯底下。 要求:要有4个卧室功能,卫生间可以只需要两个,扩大厨房。
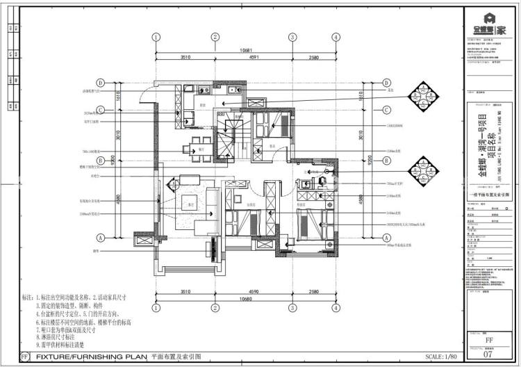
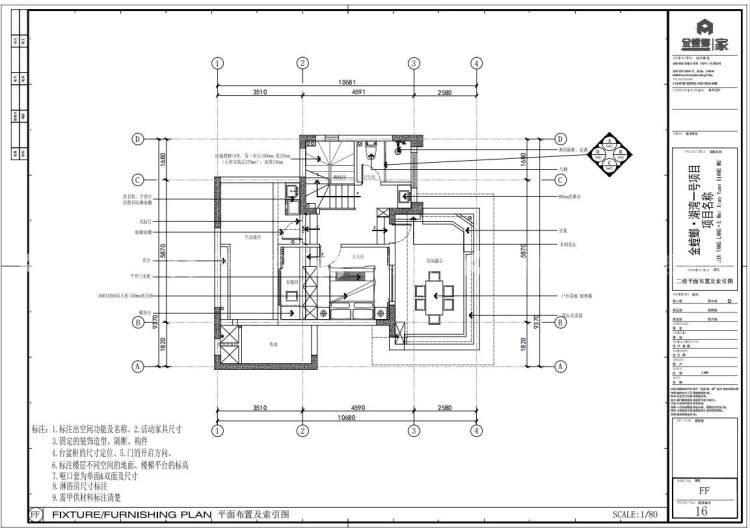
平面布置图
140平湖湾一号现代风格-平面布置图 140平湖湾一号现代风格-平面布置图
取消掉一个卫生间改为楼梯间,让楼梯下面的卧室能正常使用,生活阳台打通,扩大厨房,楼上双露台,一个做生活露台解决清洗需求,一个露台作为聚餐的观景露台。
3D全景图
140平湖湾一号现代风格-3D全景图图标 140平湖湾一号现代风格全景图封面图
空间效果图
140平湖湾一号现代风格-空间效果图
家是灵魂的个性化表达; 家是理想生活方式的呈现; 家是能予人启迪,令人快乐的空间。 艺术是设计不可或缺的角色,洞察宁静的本真,抛弃事物外部特征的思想,洞察生命本身的艺术。
140平湖湾一号现代风格-空间效果图
餐厅 通常来说,在设计家居时的每一个决策都基于对快乐的追求。 家是一个人与亲友共享私密性、对光的空间,应该能给人以疗愈和滋养。
140平湖湾一号现代风格-空间效果图
#  现代简约  140m²    效果图  #
184
不喜欢
猜你喜欢
关闭
按此效果装修多少钱?
电话咨询 在线咨询 算算我家报价
按此效果装修多少钱?
按此效果装修多少钱?
按此效果装修多少钱?
按此效果装修多少钱?
更多相似风格效果
按此效果装修多少钱?
更多相似风格效果
按此效果装修多少钱?
更多相似风格效果
按此效果装修多少钱?