首页 > 裝修案例 > 116景秀峨眉现代风格-无主灯设计

116景秀峨眉现代风格-无主灯设计

风格:现代简约 面积:116m² 户型:
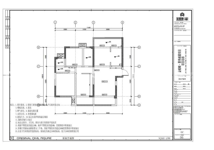
业主需求
116景秀峨眉现代风格-无主灯设计-业主需求
原户型为常规三室,带双阳台。餐厅比较小不好做餐边柜,主卧衣柜很少
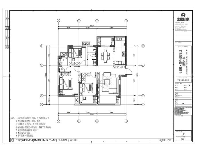
平面布置图
116景秀峨眉现代风格-无主灯设计-平面布置图
进过改造厨房扩大,厨房门墙面拆除,做了酒柜,厨房门与酒柜门共用
3D全景图
116景秀峨眉现代风格-无主灯设计-3D全景图图标 116景秀峨眉现代风格-无主灯设计全景图封面图
空间效果图
116景秀峨眉现代风格-无主灯设计-空间效果图
家是灵魂的个性化表达; 家是理想生活方式的呈现; 家是能予人启迪,令人快乐的空间。 艺术是设计不可或缺的角色,洞察宁静的本真,抛弃事物外部特征的思想,洞察生命本身的艺术。
116景秀峨眉现代风格-无主灯设计-空间效果图
餐厅 通常来说,在设计家居时的每一个决策都基于对快乐的追求。 家是一个人与亲友共享私密性、对光的空间,应该能给人以疗愈和滋养。
116景秀峨眉现代风格-无主灯设计-空间效果图
#  现代简约  116m²    效果图  #
151
不喜欢
猜你喜欢
关闭
按此效果装修多少钱?
电话咨询 在线咨询 算算我家报价
按此效果装修多少钱?
按此效果装修多少钱?
更多相似风格效果
按此效果装修多少钱?
更多相似风格效果
按此效果装修多少钱?
更多相似风格效果
按此效果装修多少钱?