首页 > 裝修案例 > 134平东湖湾现代风格-经典的现代轻奢

134平东湖湾现代风格-经典的现代轻奢

风格:现代简约 面积:134m² 户型:
业主需求
134平东湖湾现代风格-经典的现代轻奢-业主需求
户型比较规整,业主不需要进行建筑上的拆改,只需合理施工即可
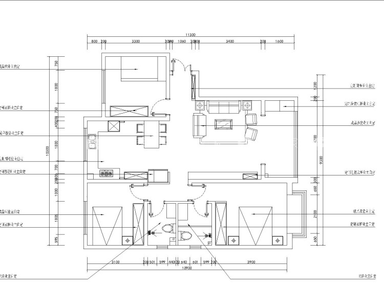
平面布置图
134平东湖湾现代风格-经典的现代轻奢-平面布置图
三室两厅两卫的经典户型,入户的客房衣柜放到入门处较为合理,合理利用空间,过道处增加一组柜子,将冰箱嵌入,这样可以遮挡餐桌用餐的时候看见卫生间门的尴尬之处
空间效果图
134平东湖湾现代风格-经典的现代轻奢-空间效果图 134平东湖湾现代风格-经典的现代轻奢-空间效果图 134平东湖湾现代风格-经典的现代轻奢-空间效果图 134平东湖湾现代风格-经典的现代轻奢-空间效果图
现代轻奢的设计,顶面加金属线条,更显轻奢之风
134平东湖湾现代风格-经典的现代轻奢-空间效果图
嵌入式冰箱,将餐边的酒柜作为一个整体,更显规整
#  现代简约  134m²    效果图  #
117
不喜欢
猜你喜欢
关闭
按此效果装修多少钱?
电话咨询 在线咨询 算算我家报价
按此效果装修多少钱?
按此效果装修多少钱?
更多相似风格效果
按此效果装修多少钱?
更多相似风格效果
按此效果装修多少钱?
更多相似风格效果
按此效果装修多少钱?
更多相似风格效果
按此效果装修多少钱?
更多相似风格效果
按此效果装修多少钱?