首页 > 裝修案例 > 130平外滩首府现代风格-蓝色海洋与浅灰色木纹的碰撞

130平外滩首府现代风格-蓝色海洋与浅灰色木纹的碰撞

风格:现代简约 面积:130m² 户型:
业主需求
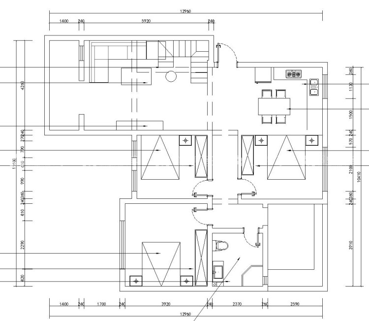
130平外滩首府现代风格-蓝色海洋与浅灰色木纹的碰撞-业主需求
此房户型缺点为客厅有两道梁交叉,希望把这个弱化掉
平面布置图
130平外滩首府现代风格-蓝色海洋与浅灰色木纹的碰撞-平面布置图
平面布置将梁拉通,做大平顶无主灯设计,还可以有层次感,其他不用做过多的平面修改
空间效果图
130平外滩首府现代风格-蓝色海洋与浅灰色木纹的碰撞-空间效果图 130平外滩首府现代风格-蓝色海洋与浅灰色木纹的碰撞-空间效果图 130平外滩首府现代风格-蓝色海洋与浅灰色木纹的碰撞-空间效果图
地面为600*1200的长砖错铺,更有视觉拉伸感,顶面的造型因地制宜,更有错层感,蓝色与木纹色的搭配,更为大胆
130平外滩首府现代风格-蓝色海洋与浅灰色木纹的碰撞-空间效果图
因户型限制,为餐厨一体的设计
#  现代简约  130m²    效果图  #
170
不喜欢
猜你喜欢
关闭
按此效果装修多少钱?
电话咨询 在线咨询 算算我家报价
按此效果装修多少钱?
按此效果装修多少钱?
更多相似风格效果
按此效果装修多少钱?
更多相似风格效果
按此效果装修多少钱?
更多相似风格效果
按此效果装修多少钱?
更多相似风格效果
按此效果装修多少钱?