首页 > 裝修案例 > 300平九龙仓逅湾雅苑现代风格-家有一面书墙

300平九龙仓逅湾雅苑现代风格-家有一面书墙

风格:现代简约 面积:300m² 户型: 小区: 九龙仓逅湾雅苑
业主需求
300平九龙仓逅湾雅苑现代风格-家有一面书墙-业主需求 300平九龙仓逅湾雅苑现代风格-家有一面书墙-业主需求 300平九龙仓逅湾雅苑现代风格-家有一面书墙-业主需求 300平九龙仓逅湾雅苑现代风格-家有一面书墙-业主需求
原始户型每个空间相对比较小需要优化 根据业主生活需求进行了优化 。
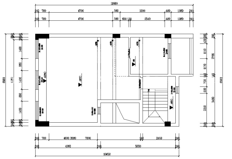
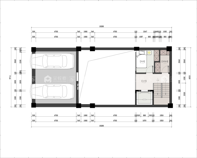
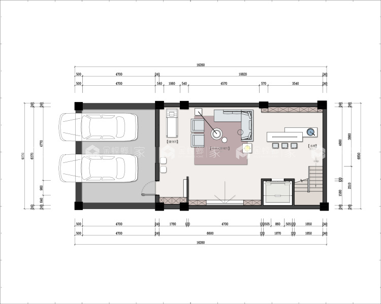
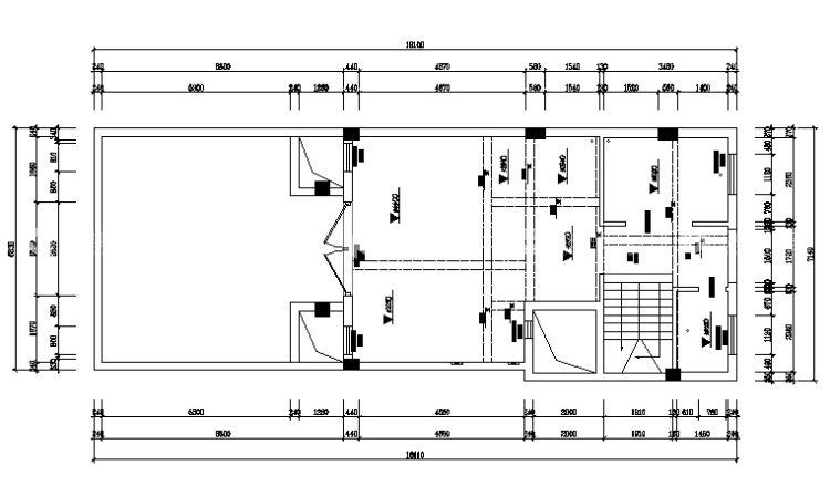
平面布置图
300平九龙仓逅湾雅苑现代风格-家有一面书墙-平面布置图 300平九龙仓逅湾雅苑现代风格-家有一面书墙-平面布置图 300平九龙仓逅湾雅苑现代风格-家有一面书墙-平面布置图 300平九龙仓逅湾雅苑现代风格-家有一面书墙-平面布置图 300平九龙仓逅湾雅苑现代风格-家有一面书墙-平面布置图
家庭公共区域进行了优化 , 结构微调。
空间效果图
300平九龙仓逅湾雅苑现代风格-家有一面书墙-空间效果图 300平九龙仓逅湾雅苑现代风格-家有一面书墙-空间效果图 300平九龙仓逅湾雅苑现代风格-家有一面书墙-空间效果图
一套位于苏州黄埭繁华地段的新房,位置在小区的最后一排:窗外一排绿荫,一座公园,隔开了闹市的喧嚣与嘈杂,难得安于一隅的宁静正是屋主向往的理想居所。
300平九龙仓逅湾雅苑现代风格-家有一面书墙-空间效果图
通透
300平九龙仓逅湾雅苑现代风格-家有一面书墙-空间效果图 300平九龙仓逅湾雅苑现代风格-家有一面书墙-空间效果图
舒适
300平九龙仓逅湾雅苑现代风格-家有一面书墙-空间效果图
整洁
#  现代简约  300m²    效果图  #
该案例设计师
金螳螂家装修设计师徐国民
徐国民
设计经验 10年以上
更多设计案例
121
不喜欢
猜你喜欢
关闭
按此效果装修多少钱?
电话咨询 在线咨询 算算我家报价
按此效果装修多少钱?
按此效果装修多少钱?
按此效果装修多少钱?
按此效果装修多少钱?
按此效果装修多少钱?
按此效果装修多少钱?
按此效果装修多少钱?
按此效果装修多少钱?
按此效果装修多少钱?
更多相似风格效果
按此效果装修多少钱?
更多相似风格效果
按此效果装修多少钱?
更多相似风格效果
按此效果装修多少钱?
更多相似风格效果
按此效果装修多少钱?
更多相似风格效果
按此效果装修多少钱?
更多相似风格效果
按此效果装修多少钱?
更多相似风格效果
按此效果装修多少钱?