首页 > 裝修案例 > 280平何山花园现代风格-现代的简雅

280平何山花园现代风格-现代的简雅

风格:现代简约 面积:280m² 户型: 小区: 何山花园
业主需求
280平何山花园现代风格-现代的简雅-业主需求 280平何山花园现代风格-现代的简雅-业主需求
在本案中,设计立于当代主义的基调,融汇技法、艺术与美学,以“物件艺术”与“自然人文”构设空间主题。
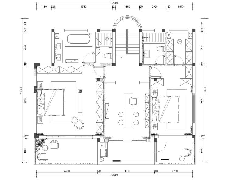
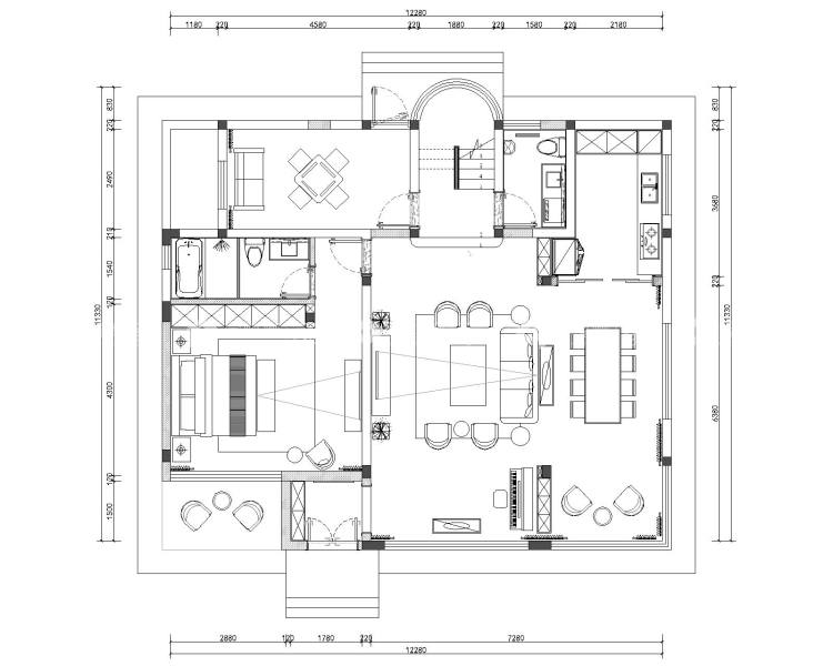
平面布置图
280平何山花园现代风格-现代的简雅-平面布置图 280平何山花园现代风格-现代的简雅-平面布置图
我们希望通过艺术与美学的升华,绘写不同户型的空间精神,展演饱满而真实的生活意趣,真正实现自由美好的居住氛围。
空间效果图
280平何山花园现代风格-现代的简雅-空间效果图
满而真实的生活意趣,真正实现自由美好的居住氛围。设计不止是营造空间,更是要通过一种理想生活的场域构建,触及人们的精神世界。
280平何山花园现代风格-现代的简雅-空间效果图
以现代都市生活为审美考量,设计将客餐厅连通一体,构建现代家庭生活的开放式格局。金属与皮质的碰撞,将低调奢华的格调渗透至空间各处,在彰显卓越工艺的同时,予人精致优雅的就餐氛围。
280平何山花园现代风格-现代的简雅-空间效果图 280平何山花园现代风格-现代的简雅-空间效果图
主卧落笔于都市生活的艺术情致,设计运用深浅清透的设色、经典雅致的软饰,令空间浸润着美学的层次、人文的温度、现代的简雅。次卧空间所构筑的风格基调。在轻灵素雅、简净质朴的现代风格中,设计通过伸展的花枝,为空间增添一笔自然的气韵,将雅致的人文气息娓娓道来。
280平何山花园现代风格-现代的简雅-空间效果图 280平何山花园现代风格-现代的简雅-空间效果图
定位于高净值人群的审美格调关照自然人文与艺术形式的结合,勾勒当代都市生活的仪式感,塑造雅奢精尚的空间氛围。
#  现代简约  280m²    效果图  #
该案例设计师
金螳螂家装修设计师于明辉
于明辉
设计经验 10年以上
更多设计案例
168
不喜欢
猜你喜欢
关闭
按此效果装修多少钱?
电话咨询 在线咨询 算算我家报价
按此效果装修多少钱?
按此效果装修多少钱?
按此效果装修多少钱?
按此效果装修多少钱?
更多相似风格效果
按此效果装修多少钱?
更多相似风格效果
按此效果装修多少钱?
更多相似风格效果
按此效果装修多少钱?
更多相似风格效果
按此效果装修多少钱?
更多相似风格效果
按此效果装修多少钱?
更多相似风格效果
按此效果装修多少钱?