首页 > 裝修案例 > 150㎡华越府意式轻奢风

150㎡华越府意式轻奢风

风格:现代轻奢 面积:150m² 户型: 小区: 华越府
业主需求
150㎡华越府意式轻奢风-业主需求
为满足客户高频的办公需求,我们重新规划了客厅布局。通过扩大客厅面积,并将办公区与沙发后方空间整合,打造了一个开放而高效的一体化工作区,使公共空间的功能性得到极大提升。
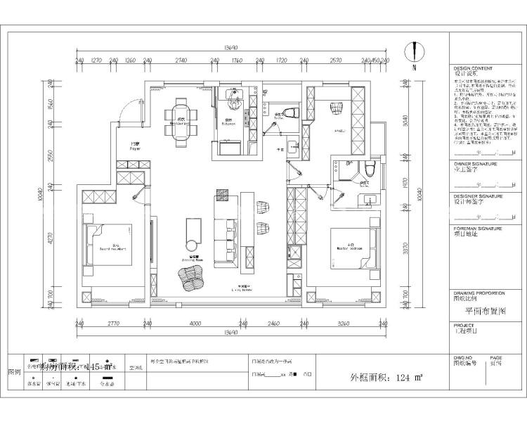
平面布置图
150㎡华越府意式轻奢风-平面布置图 150㎡华越府意式轻奢风-平面布置图 150㎡华越府意式轻奢风-平面布置图
整体以意式风格为主,用黑白大理石、木饰面、无主灯灯光来营造高级感,没有多余装饰,靠材质的质感和色彩对比来营造氛围,同时保持简洁。
空间效果图
150㎡华越府意式轻奢风-空间效果图
客厅通过无主灯灯光和大窗户的自然光,让空间时刻保持柔和松弛的氛围,既适合社交也适合独处。
150㎡华越府意式轻奢风-空间效果图
餐厅用镜面推拉门隐藏了后方的空间,既不破坏整体的简洁感,又让餐厅区域看起来清爽利落。
150㎡华越府意式轻奢风-空间效果图 150㎡华越府意式轻奢风-空间效果图 150㎡华越府意式轻奢风-空间效果图
卧室设计了单独的衣帽间,有效提升居住品质
#  现代轻奢  150m²    效果图  #
该案例设计师
金螳螂家装修设计师陶钢良
陶钢良
设计经验 10年以上
更多设计案例
125
不喜欢
猜你喜欢
关闭
按此效果装修多少钱?
电话咨询 在线咨询 算算我家报价
按此效果装修多少钱?
按此效果装修多少钱?
按此效果装修多少钱?
按此效果装修多少钱?
更多相似风格效果
按此效果装修多少钱?
更多相似风格效果
按此效果装修多少钱?
更多相似风格效果
按此效果装修多少钱?
更多相似风格效果
按此效果装修多少钱?
更多相似风格效果
按此效果装修多少钱?