首页 > 裝修案例 > 330㎡群贤府意式轻奢

330㎡群贤府意式轻奢

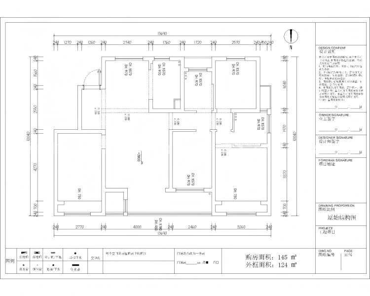
风格:现代轻奢 面积:330m² 户型: 小区: 群贤府
业主需求
330㎡群贤府意式轻奢-业主需求 330㎡群贤府意式轻奢-业主需求 330㎡群贤府意式轻奢-业主需求 330㎡群贤府意式轻奢-业主需求 330㎡群贤府意式轻奢-业主需求 330㎡群贤府意式轻奢-业主需求
这套房子将作为业主孩子的婚房,设计需要为未来生活做细致考量。我们在主卧预留了婴儿床位置,为未来做规划。整体风格追求大气且富有艺术感,既要营造全家的温馨氛围,又要保证成员的私人空间。此外,还特别规划了一间独立电竞房。
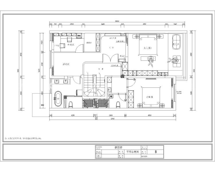
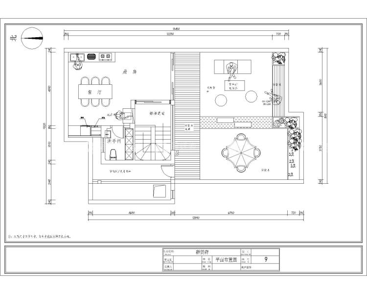
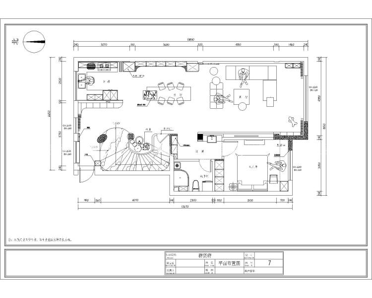
平面布置图
330㎡群贤府意式轻奢-平面布置图 330㎡群贤府意式轻奢-平面布置图 330㎡群贤府意式轻奢-平面布置图
一楼将原有的直行楼梯拆除,做成为旋转楼梯。这一设计不仅极大地提升了空间的美观性,更优化了整体的采光与空气流通,增强了室内的通透感与美观。二楼做了一个整改,整合为一个功能齐全的套房,集淋浴房,储仓室为一体的空间
空间效果图
330㎡群贤府意式轻奢-空间效果图
客厅以木饰面和大理石做为背景,让空间更开阔显高级
330㎡群贤府意式轻奢-空间效果图
餐厅设计了吧台,作为厨房和餐厅的过渡,既能用来备餐、调酒,也能当临时的早餐台或简餐区,让餐厨动线更流畅。
330㎡群贤府意式轻奢-空间效果图 330㎡群贤府意式轻奢-空间效果图 330㎡群贤府意式轻奢-空间效果图 330㎡群贤府意式轻奢-空间效果图
主卧采用玻璃隔断界定出独立功能区,在维持空间开阔通透的同时,内部配备了梳妆台并预留了婴儿床位置。整体采用低饱和度色彩,搭配艺术装置与线性灯光,让艺术审美与家庭温情自然融合。
#  现代轻奢  330m²    效果图  #
该案例设计师
金螳螂家装修设计师陶钢良
陶钢良
设计经验 10年以上
更多设计案例
176
不喜欢
猜你喜欢
关闭
按此效果装修多少钱?
电话咨询 在线咨询 算算我家报价
按此效果装修多少钱?
按此效果装修多少钱?
按此效果装修多少钱?
按此效果装修多少钱?
按此效果装修多少钱?
按此效果装修多少钱?
按此效果装修多少钱?
按此效果装修多少钱?
按此效果装修多少钱?
更多相似风格效果
按此效果装修多少钱?
更多相似风格效果
按此效果装修多少钱?
更多相似风格效果
按此效果装修多少钱?
更多相似风格效果
按此效果装修多少钱?
更多相似风格效果
按此效果装修多少钱?
更多相似风格效果
按此效果装修多少钱?