首页 > 裝修案例 > 90平清水湾现代中古风格

90平清水湾现代中古风格

风格:其他 面积:90m² 户型: 小区: 清水湾
业主需求
90平清水湾现代中古风格-业主需求
本案业主为单身女性 ,喜欢低调的复古,希望打造静谧温柔的独居空间。
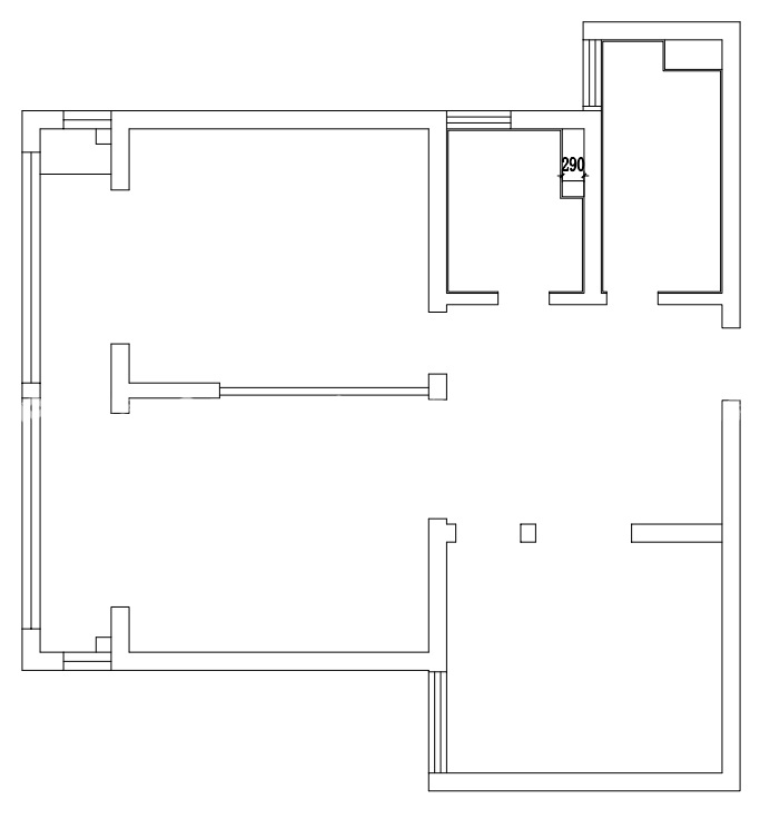
平面布置图
90平清水湾现代中古风格-平面布置图
本案在平面布局上较为规整,未作大改动
空间效果图
90平清水湾现代中古风格-空间效果图 90平清水湾现代中古风格-空间效果图
本案为现代中古风,意在打造温柔有生活情调的居室空间,全屋通铺木地板,黑色沙发和组合照片墙,使整个空间充满生活与自然气息。
90平清水湾现代中古风格-空间效果图
餐边柜很好的采用了平墙美学去设计,既不占空间又满足收纳需求。
90平清水湾现代中古风格-空间效果图
#  其他  90m²    效果图  #
该案例设计师
金螳螂家装修设计师龚艳
龚艳
设计经验 15年以上
更多设计案例
153
不喜欢
猜你喜欢
关闭
按此效果装修多少钱?
电话咨询 在线咨询 算算我家报价
按此效果装修多少钱?
按此效果装修多少钱?
更多相似风格效果
按此效果装修多少钱?
更多相似风格效果
按此效果装修多少钱?
更多相似风格效果
按此效果装修多少钱?
更多相似风格效果
按此效果装修多少钱?