首页 > 裝修案例 > 134平望湖宋式美学风

134平望湖宋式美学风

风格:雅致新中 面积:134m² 户型: 小区: 望湖
业主需求
134平望湖宋式美学风-业主需求 134平望湖宋式美学风-业主需求
整体设计遵循业主喜好,以宋式美学为主,打造暖色调的宋氏风格家居,高雅又大气。
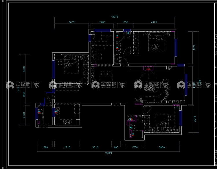
平面布置图
134平望湖宋式美学风-平面布置图 134平望湖宋式美学风-平面布置图 134平望湖宋式美学风-平面布置图
全屋定制暖白色柜体,外观统一,储物功能多。主卧门与电视背景墙做了整体化连接设计,视觉效果更完整,书房布局高效实用:L形大书桌满足工作学习需求,旁并配备了实用的排骨架床,兼顾了办公与临时客卧的功能需求。
空间效果图
134平望湖宋式美学风-空间效果图
开放式布局让客厅衔接自然,加上大窗+线性灯光,让空间更通透柔和;软装选低饱和度的柔软材质,强化舒适感。
134平望湖宋式美学风-空间效果图
餐厅用禅意花艺、简约灯具点缀,既不杂乱又强化了雅致氛围,同时嵌入式柜体兼顾了收纳实用性。
134平望湖宋式美学风-空间效果图 134平望湖宋式美学风-空间效果图
卧室以奶白为基地,搭配浅棕地板,加上大窗百叶窗引入自然光线,让空间更通透松弛
#  雅致新中  134m²    效果图  #
该案例设计师
金螳螂家装修设计师刘雨凡
刘雨凡
设计经验 5年以上
更多设计案例
199
不喜欢
猜你喜欢
关闭
按此效果装修多少钱?
电话咨询 在线咨询 算算我家报价
按此效果装修多少钱?
按此效果装修多少钱?
按此效果装修多少钱?
按此效果装修多少钱?
按此效果装修多少钱?
更多相似风格效果
按此效果装修多少钱?
更多相似风格效果
按此效果装修多少钱?
更多相似风格效果
按此效果装修多少钱?
更多相似风格效果
按此效果装修多少钱?