首页 > 裝修案例 > 119平天都花园现代中古风格

119平天都花园现代中古风格

风格:其他 面积:119m² 户型: 小区: 天都花园
业主需求
119平天都花园现代中古风格-业主需求
本案业主为一家三口,喜欢现代风格带点复古的感觉。
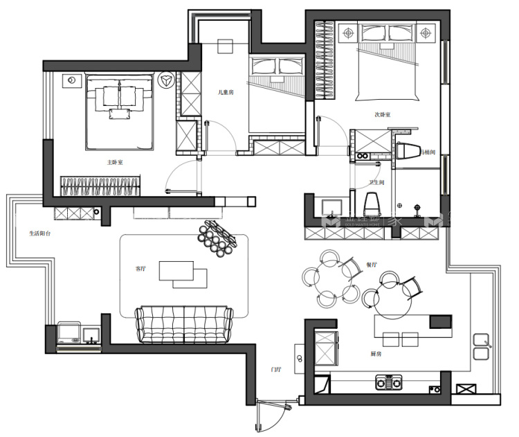
平面布置图
119平天都花园现代中古风格-平面布置图
本案在平面布局上,改变了原有儿童房和次卧的门洞位置,使动线更合理,并合理布局的前提下设计出两个卫生间,提高了空间利用率
3D全景图
119平天都花园现代中古风格-3D全景图图标 119平天都花园现代中古风格全景图封面图
空间效果图
119平天都花园现代中古风格-空间效果图 119平天都花园现代中古风格-空间效果图 119平天都花园现代中古风格-空间效果图 119平天都花园现代中古风格-空间效果图
本案为现代中古风,很好的中和了复古与现代之间的关系,以奶白色为主基调,深胡桃木色和牛油果绿为点缀,摒弃传统电视柜的做法,使空间感更松弛,富有生活格调。
119平天都花园现代中古风格-空间效果图 119平天都花园现代中古风格-空间效果图 119平天都花园现代中古风格-空间效果图
餐厨开放式融为一体,以岛台作区域风格,功能上更完善,跳色餐椅给整个空间带来一抹亮色。
119平天都花园现代中古风格-空间效果图 119平天都花园现代中古风格-空间效果图 119平天都花园现代中古风格-空间效果图 119平天都花园现代中古风格-空间效果图 119平天都花园现代中古风格-空间效果图
#  其他  119m²    效果图  #
该案例设计师
金螳螂家装修设计师胡娜
胡娜
设计经验 10年以上
更多设计案例
149
不喜欢
猜你喜欢
关闭
按此效果装修多少钱?
电话咨询 在线咨询 算算我家报价
按此效果装修多少钱?
按此效果装修多少钱?
更多相似风格效果
按此效果装修多少钱?
更多相似风格效果
按此效果装修多少钱?
更多相似风格效果
按此效果装修多少钱?
更多相似风格效果
按此效果装修多少钱?
更多相似风格效果
按此效果装修多少钱?
更多相似风格效果
按此效果装修多少钱?
更多相似风格效果
按此效果装修多少钱?
更多相似风格效果
按此效果装修多少钱?
更多相似风格效果
按此效果装修多少钱?
更多相似风格效果
按此效果装修多少钱?
更多相似风格效果
按此效果装修多少钱?
更多相似风格效果
按此效果装修多少钱?