首页 > 裝修案例 > 220平复式星湖花园轻法风格

220平复式星湖花园轻法风格

风格:其他 面积:220m² 户型: 小区: 星湖花园
业主需求
220平复式星湖花园轻法风格-业主需求 220平复式星湖花园轻法风格-业主需求
本案业主偏好明亮的浅色系风格,想要打造浪漫具有生活情调的居室,不喜欢太多的造型元素,整体大气有高级感。
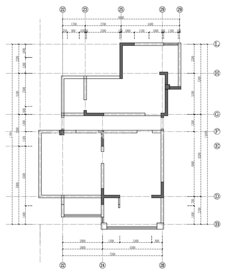
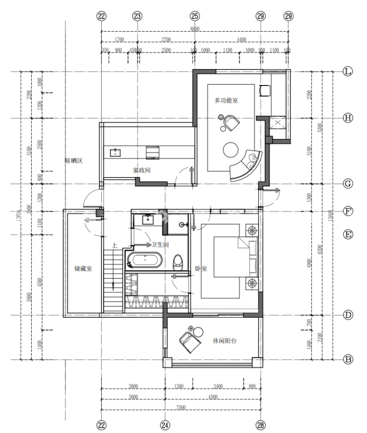
平面布置图
220平复式星湖花园轻法风格-平面布置图 220平复式星湖花园轻法风格-平面布置图
本案在平面布局上一楼拆除了一间卧室与客厅融为整体打造出横厅的格局,改变原卫生间布局,增加储物室,提高了空间利用率。
空间效果图
220平复式星湖花园轻法风格-空间效果图 220平复式星湖花园轻法风格-空间效果图
本案为轻法风格,业主不喜欢繁复的造型元素,去除传统的电视背景墙,以极简方向去思考,融合奶油风打造明亮富有高级感的居室。
220平复式星湖花园轻法风格-空间效果图
餐厅延续客厅的风格,将奶白置入基地,园台桌面与弧形吊灯灯弧形元素,打造优雅与慵懒的风情。
220平复式星湖花园轻法风格-空间效果图
#  其他  220m²    效果图  #
该案例设计师
金螳螂家装修设计师邰岩
邰岩
设计经验 15年以上
更多设计案例
147
不喜欢
猜你喜欢
关闭
按此效果装修多少钱?
电话咨询 在线咨询 算算我家报价
按此效果装修多少钱?
按此效果装修多少钱?
按此效果装修多少钱?
按此效果装修多少钱?
更多相似风格效果
按此效果装修多少钱?
更多相似风格效果
按此效果装修多少钱?
更多相似风格效果
按此效果装修多少钱?
更多相似风格效果
按此效果装修多少钱?