首页 > 裝修案例 > 140平荷岸晓风现代风格-梦想家

140平荷岸晓风现代风格-梦想家

风格:现代简约 面积:140m² 户型: 小区: 荷岸晓风
业主需求
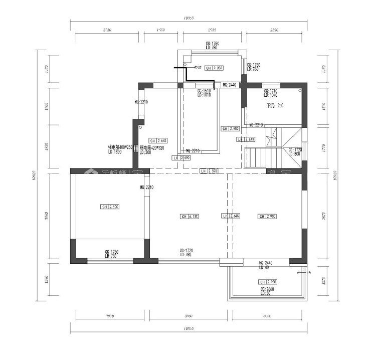
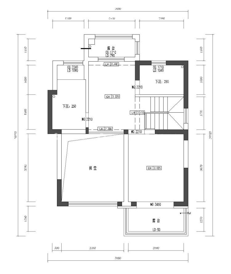
140平荷岸晓风现代风格-梦想家-业主需求 140平荷岸晓风现代风格-梦想家-业主需求
1.户型结构图一层:原始户型结构阳台利用率不高,卧室飘窗功能性不强 2.户型结构图二层:二楼的主卧空间和北房间不能很好的利用,改变了外卫的方向,增加空间的使用性。
平面布置图
140平荷岸晓风现代风格-梦想家-平面布置图 140平荷岸晓风现代风格-梦想家-平面布置图
一个充满温度与放松的地方 一份艺术与舒适并存的生活栖所 便是回家的期待
3D全景图
140平荷岸晓风现代风格-梦想家-3D全景图图标 140平荷岸晓风现代风格-梦想家全景图封面图
空间效果图
140平荷岸晓风现代风格-梦想家-空间效果图
进门玄关处做了造景背景,利用厨房延伸的墙面做了穿插结构,把阳台都纳入厨房的空间里面,增加厨房的使用空间。
140平荷岸晓风现代风格-梦想家-空间效果图
采用无主灯的氛围设计,营造温馨简洁的就餐环境,增加储物空间。
140平荷岸晓风现代风格-梦想家-空间效果图
城市的纷杂喧嚣,在进入卧室的那一刻戛然而止。纯净的墙面放松了一天的疲惫,舒适体验触手可及。
140平荷岸晓风现代风格-梦想家-空间效果图
墙面整体绿色与浅粉色的家具相结合,色彩明亮活泼,整个小公主的房间,满足儿童的日常学习娱乐需求。
#  现代简约  140m²    效果图  #
该案例设计师
金螳螂家装修设计师姜珍珍
姜珍珍
设计经验 10年以上
更多设计案例
193
不喜欢
猜你喜欢
关闭
按此效果装修多少钱?
电话咨询 在线咨询 算算我家报价
按此效果装修多少钱?
按此效果装修多少钱?
按此效果装修多少钱?
按此效果装修多少钱?
更多相似风格效果
按此效果装修多少钱?
更多相似风格效果
按此效果装修多少钱?
更多相似风格效果
按此效果装修多少钱?
更多相似风格效果
按此效果装修多少钱?