首页 > 裝修案例 > 140平新城悦隽美式风格

140平新城悦隽美式风格

风格:其他 面积:140m² 户型:
业主需求
140平新城悦隽美式风格-业主需求
四口之家,业主有一个男孩一个女孩,需有自己的学习空间,男主母亲偶尔来居住一段时间,客厅需要放置一架钢琴。女主喜欢空间视觉冲击力强,要有一定金属元素,轻奢风格。一家四口在滨海城市居住多年,对大海充满向往。
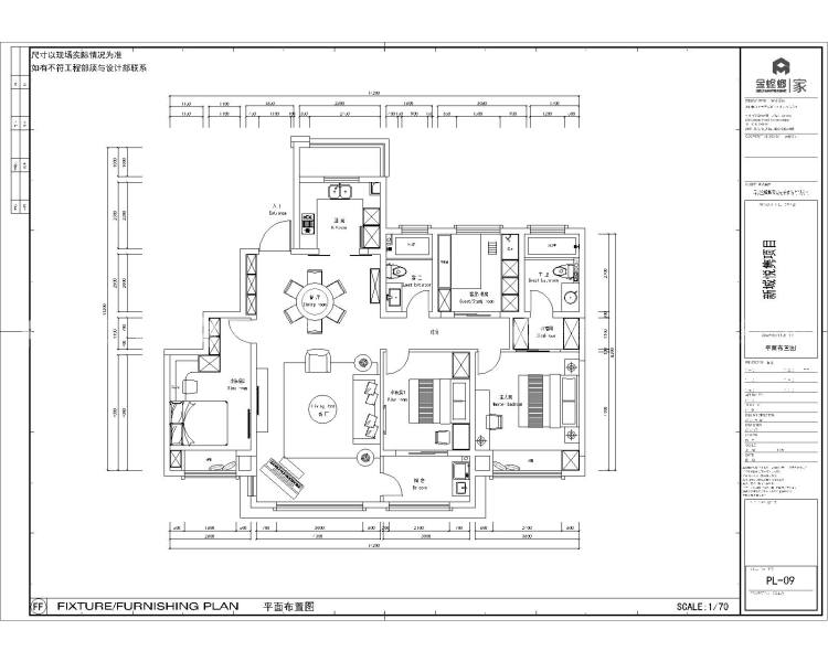
平面布置图
140平新城悦隽美式风格-平面布置图
客户有两个小孩,满足居住人口基本功能布局需求的基础上考虑收纳,整体色调偏冷,融入了较多灰蓝色主题,造型面较多,视觉冲击力较强,整体风格定位为美式轻奢。
空间效果图
140平新城悦隽美式风格-空间效果图 140平新城悦隽美式风格-空间效果图 140平新城悦隽美式风格-空间效果图
客厅墙面大面积采用了灰蓝色的护墙板与木线条,电视背景采用了鱼肚白岩板并且做出层次,时尚收敛。木饰面、岩板、顶面都相应嵌入金属线条,彰显轻奢之美。简约流畅线条的家具彰显了空间的时尚大气,孔雀绿的单人
140平新城悦隽美式风格-空间效果图
餐厅背景与沙发背景、电视背景呼应,增加空间的视觉冲击感。
140平新城悦隽美式风格-空间效果图
主卧室背景墙采用了蓝色乳胶漆填充,男孩房床品、定制、窗帘也相应用蓝色做了点缀。
#  其他  140m²    效果图  #
130
不喜欢
猜你喜欢
关闭
按此效果装修多少钱?
电话咨询 在线咨询 算算我家报价
按此效果装修多少钱?
按此效果装修多少钱?
更多相似风格效果
按此效果装修多少钱?
更多相似风格效果
按此效果装修多少钱?
更多相似风格效果
按此效果装修多少钱?
更多相似风格效果
按此效果装修多少钱?
更多相似风格效果
按此效果装修多少钱?