首页 > 裝修案例 > 114平凤凰台现代风格

114平凤凰台现代风格

风格:现代简约 面积:114m² 户型: 小区: 凤凰台
业主需求
114平凤凰台现代风格-业主需求
客户主要是满足小孩上学使用,父母偶尔同住,设计上希望新颖,耐看,功能满足收纳,
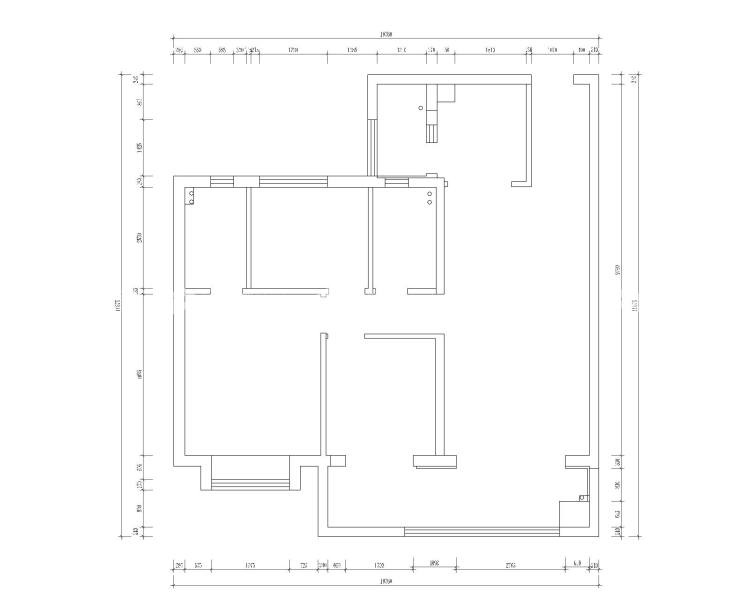
平面布置图
114平凤凰台现代风格-平面布置图
平面设计上改变原本厨房收纳不足、采光不足,开放式设计。进门开阔大气,增加采光,使用更加方便。
空间效果图
114平凤凰台现代风格-空间效果图
采用无主灯设计,硬装干净清爽,色彩采用咖色,更有质感,主要用定制作为全屋重点。灯光也采用反光灯槽设计,使空间更有层次
114平凤凰台现代风格-空间效果图
餐厅开放式设计,明亮柔和,满足客户多人或独自使用的需求
114平凤凰台现代风格-空间效果图
卧室设计温馨舒适,满足衣物收纳
#  现代简约  114m²    效果图  #
150
不喜欢
猜你喜欢
关闭
按此效果装修多少钱?
电话咨询 在线咨询 算算我家报价
按此效果装修多少钱?
按此效果装修多少钱?
更多相似风格效果
按此效果装修多少钱?
更多相似风格效果
按此效果装修多少钱?
更多相似风格效果
按此效果装修多少钱?