首页 > 裝修案例 > 780平桃花源法式风格

780平桃花源法式风格

风格:其他 面积:780m² 户型: 小区: 桃花源
业主需求
780平桃花源法式风格-业主需求 780平桃花源法式风格-业主需求 780平桃花源法式风格-业主需求
本案的户型是独栋别墅,分为两层住宅以及一层地下室。户型方正,采光良好,房子优越的自身优势更需要用心的设计,才能将地利人和发挥到极致。
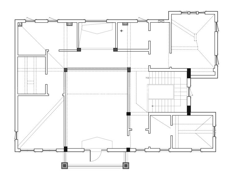
平面布置图
780平桃花源法式风格-平面布置图 780平桃花源法式风格-平面布置图 780平桃花源法式风格-平面布置图
整体设计风格为法式现代风,将法式家居中多采用的洗白处理、华丽配色与现代风的简约、时尚完美融合,打造出不同凡响的格调感。
空间效果图
780平桃花源法式风格-空间效果图 780平桃花源法式风格-空间效果图 780平桃花源法式风格-空间效果图 780平桃花源法式风格-空间效果图 780平桃花源法式风格-空间效果图
客厅采用了弧形门洞的分割,空间隔而不断。蓝色的布艺沙发、红色的单椅、暗红色的屏风,增添了整个空间的现代感,却将整体气质衬托得更加典雅。
780平桃花源法式风格-空间效果图 780平桃花源法式风格-空间效果图
中岛台的设计规整却经典,黑白对比色将空间划分为两块。鱼肚白的吧台简洁大气,金色的吧椅和门框交相呼应,打造出别致的高级感。 餐厅采用的圆形餐桌,椅子也选择了具有弧线感的设计,在整个四方的空间里显得圆滑流畅,给人一种舒适的包容感。良好的采光使得经典的留白不会显得冰冷,辅之以顶部的装饰,打造出一种轻奢感,在现代与复古之间达到和谐的交融。这样的设计不仅不会显得杂乱拥挤,更致力于表达出空间的延伸感。
780平桃花源法式风格-空间效果图 780平桃花源法式风格-空间效果图 780平桃花源法式风格-空间效果图 780平桃花源法式风格-空间效果图
在主卧空间白色与西藏红交织在一起,素雅之中彰显一份古典韵味,造型上采用设计师惯用的方式,对复古元素进行简化升华,结合公共艺术的概念,多元化的设计理念,语言“丰富又简洁”,结构“复杂又纯粹”。 为了保证长辈活动便捷性与睡眠质量,我们把两个长辈房都布置在一楼,相对比较私密的空间,与客厅保持一定的距离。而且都拥有非常良好的通风采光,将户外的风景引入到室内空间,与自然合二为一。风格上我们尊重长辈的意见,采用了比较传统的新美式和美式风格,略显古朴高贵。
780平桃花源法式风格-空间效果图 780平桃花源法式风格-空间效果图
女孩房采用了橘粉色为主要色彩,和一般的粉色相比,这个颜色更舒适,也更加温暖。云朵吊灯的设计给女孩子处在云端的梦幻感。 男孩房采用蓝紫色为主色调,都是温柔沉静的颜色;条纹墙纸、动物雕塑、气球吊灯以及桌子板凳等扩充了房间的细节,带着孩子童真的灵气。
780平桃花源法式风格-空间效果图 780平桃花源法式风格-空间效果图 780平桃花源法式风格-空间效果图 780平桃花源法式风格-空间效果图
女孩房卫生间采用了白色、浅粉色的搭配,显得干净整洁。水槽、浴缸的弧线设计使得空间更加温柔饱满。 男孩房卫生间则以蓝色、橙色为主色调,规整却不失活泼。
780平桃花源法式风格-空间效果图 780平桃花源法式风格-空间效果图 780平桃花源法式风格-空间效果图 780平桃花源法式风格-空间效果图
地下一楼大致分为两块,一侧可以用来聚会,拥有八个座位的长桌;另一侧供孩子玩乐,空间旷阔,摆放着玩具,充满童趣。两侧的墙面都有柜子,可以用来存放各种玩具、杂物,也可以作为展示柜,摆放手办。
780平桃花源法式风格-空间效果图
地下一楼另有影音房,设计具有先进的科技感和前卫感,线条的灯光设计将整个空间放大,深色背景,给人无限的沉浸感。沙发的包围感在阴暗的空间里给人以安全感,环绕音提供视听盛宴。
#  其他  780m²    效果图  #
该案例设计师
金螳螂家装修设计师徐国民
徐国民
设计经验 10年以上
更多设计案例
128
不喜欢
猜你喜欢
关闭
按此效果装修多少钱?
电话咨询 在线咨询 算算我家报价
按此效果装修多少钱?
按此效果装修多少钱?
按此效果装修多少钱?
按此效果装修多少钱?
按此效果装修多少钱?
按此效果装修多少钱?
更多相似风格效果
按此效果装修多少钱?
更多相似风格效果
按此效果装修多少钱?
更多相似风格效果
按此效果装修多少钱?
更多相似风格效果
按此效果装修多少钱?
更多相似风格效果
按此效果装修多少钱?
更多相似风格效果
按此效果装修多少钱?
更多相似风格效果
按此效果装修多少钱?
更多相似风格效果
按此效果装修多少钱?
更多相似风格效果
按此效果装修多少钱?
更多相似风格效果
按此效果装修多少钱?
更多相似风格效果
按此效果装修多少钱?
更多相似风格效果
按此效果装修多少钱?
更多相似风格效果
按此效果装修多少钱?
更多相似风格效果
按此效果装修多少钱?
更多相似风格效果
按此效果装修多少钱?
更多相似风格效果
按此效果装修多少钱?
更多相似风格效果
按此效果装修多少钱?
更多相似风格效果
按此效果装修多少钱?
更多相似风格效果
按此效果装修多少钱?
更多相似风格效果
按此效果装修多少钱?
更多相似风格效果
按此效果装修多少钱?
更多相似风格效果
按此效果装修多少钱?