首页 > 裝修案例 > 165平上园湾现代风格

165平上园湾现代风格

风格:现代简约 面积:165m² 户型: 小区: 上园湾
业主需求
165平上园湾现代风格-业主需求
本案例原是精装房,在我第一次走进业主房子里的时候,业主已经自己拆除的七七八八了,问道业主为何要考虑拆除掉,业主的回答反应了当下精装房的问题,首先从表面硬装效果来并不养眼,也不是自己喜欢的风格,其次材料用的怎么样也不清楚,再说施工业主认为自己拆除后并不后悔,精装房施工质量还需有待提高。
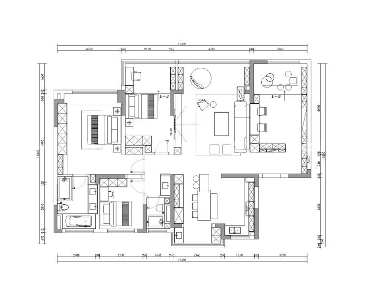
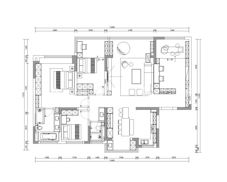
平面布置图
165平上园湾现代风格-平面布置图
本案例原是精装房,在我第一次走进业主房子里的时候,业主已经自己拆除的七七八八了,问道业主为何要考虑拆除掉,业主的回答反应了当下精装房的问题,首先从表面硬装效果来并不养眼,也不是自己喜欢的风格,其次材料用的怎么样也不清楚,再说施工业主认为自己拆除后并不后悔,精装房施工质量还需有待提高。
空间效果图
165平上园湾现代风格-空间效果图
业主是一家三口人居住,目前小宝宝只有5个月大,对生活要求比较高,喜欢的风格也是当下流行的现代轻奢风格。
165平上园湾现代风格-空间效果图
在考虑方案的时候,我更多的是考虑了空间的互动性,希望家里这位小宝宝有个快乐成长的过程,在成长的过程中都离不开父母对他的关注。
165平上园湾现代风格-空间效果图
在这套案例设计中,我们运用了动静分离的设计手法,并在效果呈现上面尽可能的简约,无主灯的设计,简约的门板及线条,并运用了一些轻奢元素,让整个效果搭配更和谐。
165平上园湾现代风格-空间效果图
在考虑方案的时候,我更多的是考虑了空间的互动性,希望家里这位小宝宝有个快乐成长的过程,在成长的过程中都离不开父母对他的关注。
165平上园湾现代风格-空间效果图
业主有品茗和打游戏的爱好,他希望将来可以和孩子一起打游戏。
#  现代简约  165m²    效果图  #
该案例设计师
金螳螂家装修设计师于明辉
于明辉
设计经验 10年以上
更多设计案例
138
不喜欢
猜你喜欢
关闭
按此效果装修多少钱?
电话咨询 在线咨询 算算我家报价
按此效果装修多少钱?
按此效果装修多少钱?
更多相似风格效果
按此效果装修多少钱?
更多相似风格效果
按此效果装修多少钱?
更多相似风格效果
按此效果装修多少钱?
更多相似风格效果
按此效果装修多少钱?
更多相似风格效果
按此效果装修多少钱?