首页 > 裝修案例 > 400平观澜雅苑现代风格-美学之家

400平观澜雅苑现代风格-美学之家

风格:现代简约 面积:400m² 户型: 小区: 观澜雅苑
业主需求
400平观澜雅苑现代风格-美学之家-业主需求 400平观澜雅苑现代风格-美学之家-业主需求 400平观澜雅苑现代风格-美学之家-业主需求 400平观澜雅苑现代风格-美学之家-业主需求
一对非常时尚夫妇 追求品质生活 完美空间设计
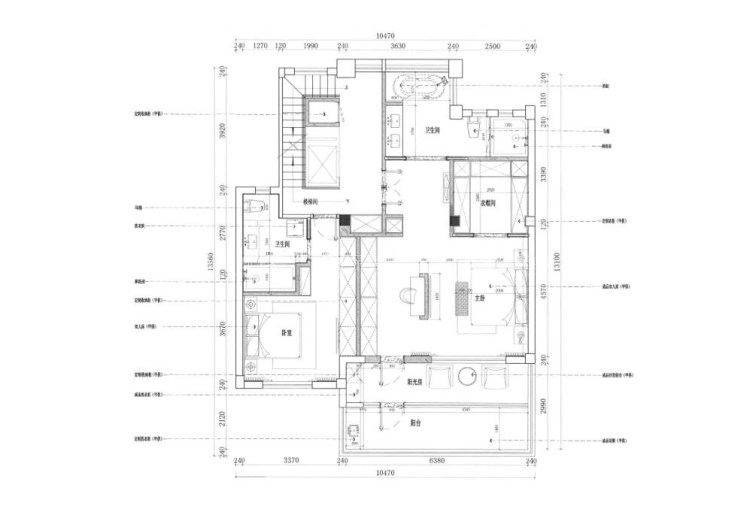
平面布置图
400平观澜雅苑现代风格-美学之家-平面布置图 400平观澜雅苑现代风格-美学之家-平面布置图 400平观澜雅苑现代风格-美学之家-平面布置图 400平观澜雅苑现代风格-美学之家-平面布置图
从形态设计师 和 形体构成 上 达到 造型美 协调美 布局美 自然美 意境美 文化美
空间效果图
400平观澜雅苑现代风格-美学之家-空间效果图
顶天立地 一气呵成 让空间氛围显得 宽敞明亮 对空间极具拉伸感 一眼望去 整体空间完美融合一体
400平观澜雅苑现代风格-美学之家-空间效果图 400平观澜雅苑现代风格-美学之家-空间效果图
线条齐平 视觉平衡 隐藏式踢脚线 线条与墙面齐平 装饰效果图更美观
400平观澜雅苑现代风格-美学之家-空间效果图 400平观澜雅苑现代风格-美学之家-空间效果图 400平观澜雅苑现代风格-美学之家-空间效果图
卧室背景 中轴对称法则 打造极致对称美
400平观澜雅苑现代风格-美学之家-空间效果图 400平观澜雅苑现代风格-美学之家-空间效果图 400平观澜雅苑现代风格-美学之家-空间效果图
卫生间将 墙排的排水隐藏在墙体内 使视觉更清爽 减少噪音 无卫生死角 制造简单极致的家
400平观澜雅苑现代风格-美学之家-空间效果图 400平观澜雅苑现代风格-美学之家-空间效果图 400平观澜雅苑现代风格-美学之家-空间效果图
负一楼空间的 顶部整体空间的顶槽之美 呈现出笔直流畅的线条 为简朴的装饰增色不少
#  现代简约  400m²    效果图  #
189
不喜欢
猜你喜欢
关闭
按此效果装修多少钱?
电话咨询 在线咨询 算算我家报价
按此效果装修多少钱?
按此效果装修多少钱?
按此效果装修多少钱?
按此效果装修多少钱?
按此效果装修多少钱?
按此效果装修多少钱?
按此效果装修多少钱?
按此效果装修多少钱?
更多相似风格效果
按此效果装修多少钱?
更多相似风格效果
按此效果装修多少钱?
更多相似风格效果
按此效果装修多少钱?
更多相似风格效果
按此效果装修多少钱?
更多相似风格效果
按此效果装修多少钱?
更多相似风格效果
按此效果装修多少钱?
更多相似风格效果
按此效果装修多少钱?
更多相似风格效果
按此效果装修多少钱?
更多相似风格效果
按此效果装修多少钱?
更多相似风格效果
按此效果装修多少钱?
更多相似风格效果
按此效果装修多少钱?
更多相似风格效果
按此效果装修多少钱?