首页 > 裝修案例 > 158中建之星现代风格

158中建之星现代风格

风格:现代简约 面积:158m² 户型: 小区: 中建之星
业主需求
158中建之星现代风格-业主需求
保留三间卧室,一个独立衣帽间。家里需要很多储物空间
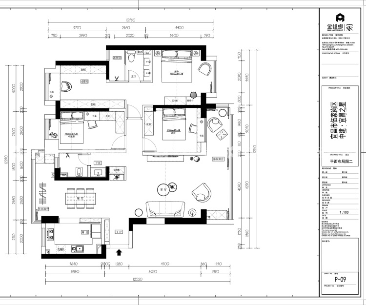
平面布置图
158中建之星现代风格-平面布置图
保留三个房间,一个单独的衣帽间,飘窗改成了一个书桌。客厅到休闲阳台打通视野更宽阔。单独的生活阳台保证了舒适性
空间效果图
158中建之星现代风格-空间效果图
现代风格、瓷砖与饰面板电视背景墙相呼应更加高级耐看
158中建之星现代风格-空间效果图
餐厅的瓷砖通铺到阳台,墙面做了一个装饰柜,餐厅的座椅颜色相呼应更加使人舒适
#  现代简约  158m²    效果图  #
195
不喜欢
猜你喜欢
关闭
按此效果装修多少钱?
电话咨询 在线咨询 算算我家报价
按此效果装修多少钱?
按此效果装修多少钱?
更多相似风格效果
按此效果装修多少钱?
更多相似风格效果
按此效果装修多少钱?