首页 > 裝修案例 > 350平仰山墅现代风格-行云流水的简约--心动的感觉

350平仰山墅现代风格-行云流水的简约--心动的感觉

风格:现代简约 面积:350m² 户型: 小区: 仰山墅
业主需求
350平仰山墅现代风格-行云流水的简约--心动的感觉-业主需求 350平仰山墅现代风格-行云流水的简约--心动的感觉-业主需求 350平仰山墅现代风格-行云流水的简约--心动的感觉-业主需求 350平仰山墅现代风格-行云流水的简约--心动的感觉-业主需求
业主是一对海归夫妇,从事高科技产业,对家的想象是简约、科技、有质感
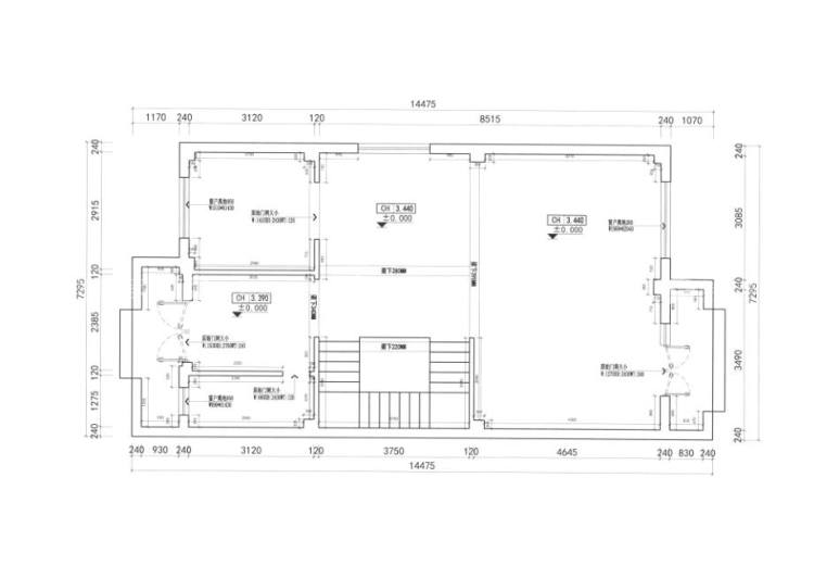
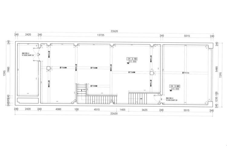
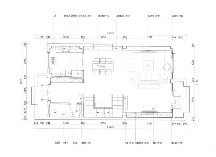
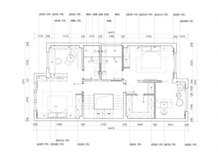
平面布置图
350平仰山墅现代风格-行云流水的简约--心动的感觉-平面布置图 350平仰山墅现代风格-行云流水的简约--心动的感觉-平面布置图 350平仰山墅现代风格-行云流水的简约--心动的感觉-平面布置图 350平仰山墅现代风格-行云流水的简约--心动的感觉-平面布置图
业主的要求很简单,但是我们在设计的时候,还是反复推敲,对空间进行改造
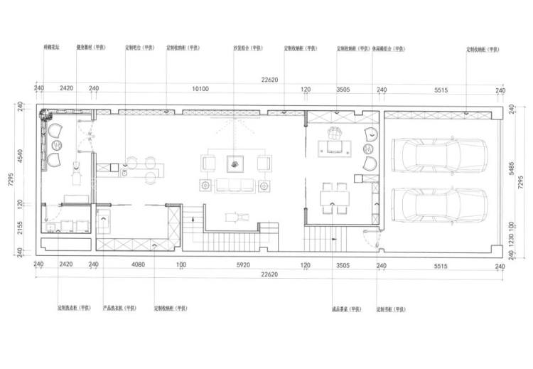
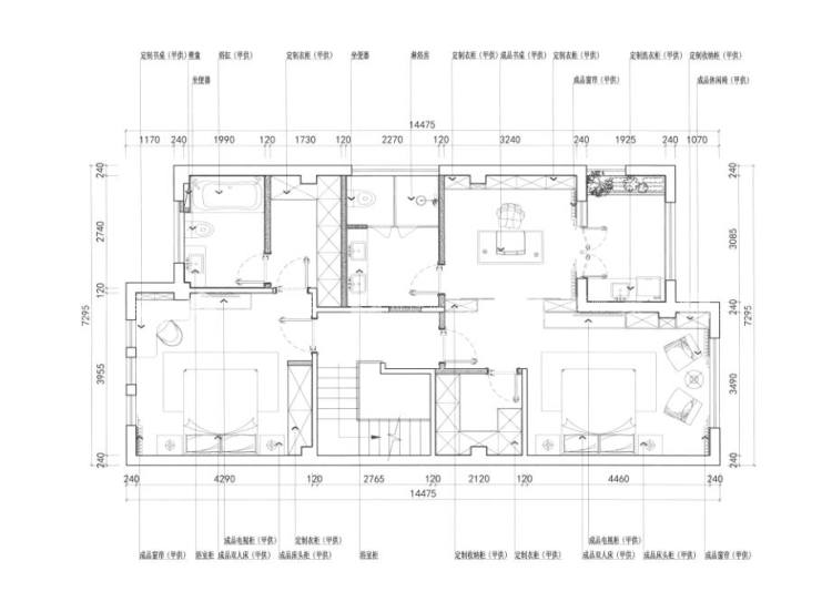
空间效果图
350平仰山墅现代风格-行云流水的简约--心动的感觉-空间效果图 350平仰山墅现代风格-行云流水的简约--心动的感觉-空间效果图 350平仰山墅现代风格-行云流水的简约--心动的感觉-空间效果图
一层拆除了大部分的隔墙,使空间开阔、明朗
350平仰山墅现代风格-行云流水的简约--心动的感觉-空间效果图 350平仰山墅现代风格-行云流水的简约--心动的感觉-空间效果图
暖光营造美好用餐环境
350平仰山墅现代风格-行云流水的简约--心动的感觉-空间效果图 350平仰山墅现代风格-行云流水的简约--心动的感觉-空间效果图
二层根据需求对男孩房优化,给男孩房最大的空间,满足男孩好动及成长的需求
350平仰山墅现代风格-行云流水的简约--心动的感觉-空间效果图 350平仰山墅现代风格-行云流水的简约--心动的感觉-空间效果图
三层为主人房,把北面的房间改为衣帽间,满足业主想打造套房的需求;结合定制智能包,满足了业主夫妇对新家的期许
#  现代简约  350m²    效果图  #
191
不喜欢
猜你喜欢
关闭
按此效果装修多少钱?
电话咨询 在线咨询 算算我家报价
按此效果装修多少钱?
按此效果装修多少钱?
按此效果装修多少钱?
按此效果装修多少钱?
按此效果装修多少钱?
按此效果装修多少钱?
按此效果装修多少钱?
按此效果装修多少钱?
更多相似风格效果
按此效果装修多少钱?
更多相似风格效果
按此效果装修多少钱?
更多相似风格效果
按此效果装修多少钱?
更多相似风格效果
按此效果装修多少钱?
更多相似风格效果
按此效果装修多少钱?
更多相似风格效果
按此效果装修多少钱?
更多相似风格效果
按此效果装修多少钱?
更多相似风格效果
按此效果装修多少钱?
更多相似风格效果
按此效果装修多少钱?