首页 > 裝修案例 > 525平一心苑别墅现代风格

525平一心苑别墅现代风格

风格:现代简约 面积:525m² 户型:
业主需求
525平一心苑别墅现代风格-业主需求 525平一心苑别墅现代风格-业主需求
空间较大,需求整体空间要大气,储藏足够
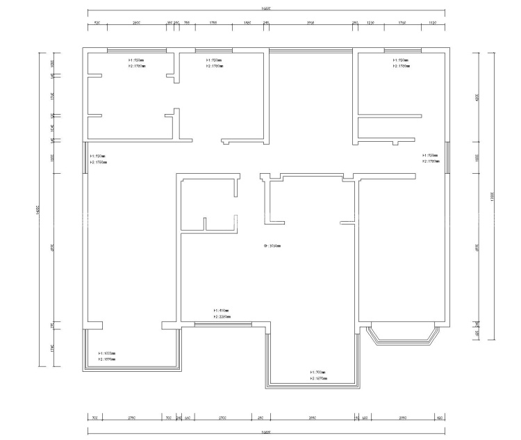
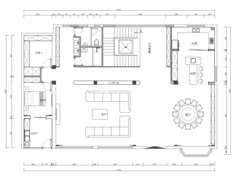
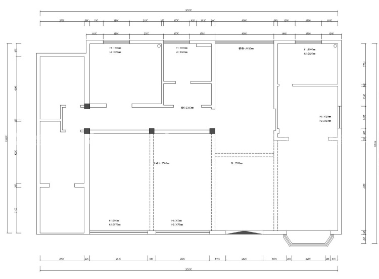
平面布置图
525平一心苑别墅现代风格-平面布置图 525平一心苑别墅现代风格-平面布置图
一楼整体为公共空间,二楼为卧室。
空间效果图
525平一心苑别墅现代风格-空间效果图
整体用了深浅搭配的饰面,搭配金色的不锈钢元素整体大气。
525平一心苑别墅现代风格-空间效果图
展示柜用了圆弧元素及玻璃门处理,通透大气
525平一心苑别墅现代风格-空间效果图 525平一心苑别墅现代风格-空间效果图 525平一心苑别墅现代风格-空间效果图
整体用了简单的元素设计,不失大气。
#  现代简约  525m²    效果图  #
108
不喜欢
猜你喜欢
关闭
按此效果装修多少钱?
电话咨询 在线咨询 算算我家报价
按此效果装修多少钱?
按此效果装修多少钱?
按此效果装修多少钱?
按此效果装修多少钱?
更多相似风格效果
按此效果装修多少钱?
更多相似风格效果
按此效果装修多少钱?
更多相似风格效果
按此效果装修多少钱?
更多相似风格效果
按此效果装修多少钱?
更多相似风格效果
按此效果装修多少钱?