首页 > 裝修案例 > 160平天玺现代风格

160平天玺现代风格

风格:现代简约 面积:160m² 户型:4室
业主需求
160平天玺现代风格-业主需求 160平天玺现代风格-业主需求
业主需求4个卧室,整体现代轻奢的风格,足够的收纳空间
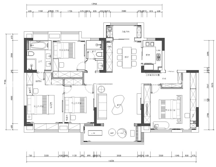
平面布置图
160平天玺现代风格-平面布置图 160平天玺现代风格-平面布置图
客厅用了石材及饰面结合,简单大气
空间效果图
160平天玺现代风格-空间效果图
主卧及衣帽间整体处理
160平天玺现代风格-空间效果图
女儿房用了粉色及白色,清新舒适的感觉
#  现代简约  160m²  4室  效果图  #
179
不喜欢
猜你喜欢
关闭
按此效果装修多少钱?
电话咨询 在线咨询 算算我家报价
按此效果装修多少钱?
按此效果装修多少钱?
按此效果装修多少钱?
按此效果装修多少钱?
更多相似风格效果
按此效果装修多少钱?
更多相似风格效果
按此效果装修多少钱?