首页 > 裝修案例 > 220平沁园现代风格

220平沁园现代风格

风格:现代简约 面积:220m² 户型:3室
业主需求
220平沁园现代风格-业主需求 220平沁园现代风格-业主需求
风格赋予思想以价值,并使思想得以传播。本案为现代风格。简约而不简单。
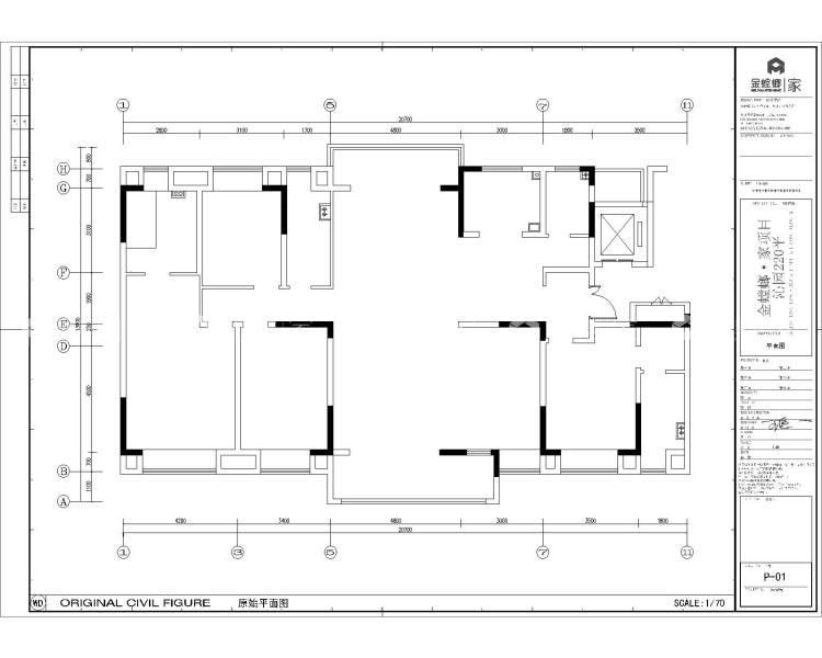
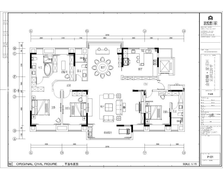
平面布置图
220平沁园现代风格-平面布置图 220平沁园现代风格-平面布置图
客餐厅利用木饰面及布艺硬包相互搭配,融入金属及石材等元素,整个空间更加整体。
空间效果图
220平沁园现代风格-空间效果图
将原厨房与家政空间打通,整体设计为厨房,与餐厅相呼应。
220平沁园现代风格-空间效果图 220平沁园现代风格-空间效果图 220平沁园现代风格-空间效果图
主卧套房配备独立卫生间及独立衣帽间。
220平沁园现代风格-空间效果图
女儿房。
#  现代简约  220m²  3室  效果图  #
103
不喜欢
猜你喜欢
关闭
按此效果装修多少钱?
电话咨询 在线咨询 算算我家报价
按此效果装修多少钱?
按此效果装修多少钱?
按此效果装修多少钱?
按此效果装修多少钱?
更多相似风格效果
按此效果装修多少钱?
更多相似风格效果
按此效果装修多少钱?
更多相似风格效果
按此效果装修多少钱?
更多相似风格效果
按此效果装修多少钱?
更多相似风格效果
按此效果装修多少钱?