首页 > 裝修案例 > 134平滨湖一号现代风格-柔美雅致,为你心动

134平滨湖一号现代风格-柔美雅致,为你心动

风格:现代简约 面积:134m² 户型:3室
业主需求
134平滨湖一号现代风格-柔美雅致,为你心动-业主需求
业主要求现代风格,简洁大方,需要单独的洗衣和晾衣空间,不想把客厅的阳台占用,还需要尽量多的储物空间
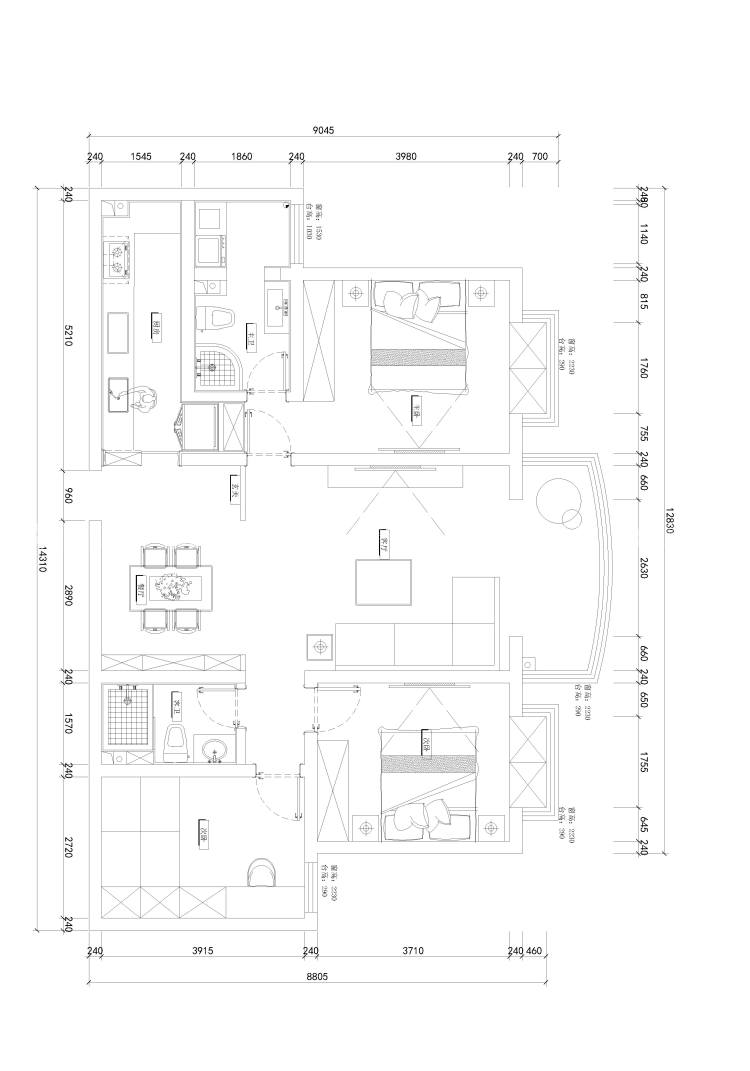
平面布置图
134平滨湖一号现代风格-柔美雅致,为你心动-平面布置图
户型改动部分为:厨房储藏位置隔给卫生间使用,将主卧卫生间扩大,单独的洗衣和晾衣空间,客厅阳台作为休闲阳台使用,小书房安置为榻榻米加书房,储物空间更多
空间效果图
134平滨湖一号现代风格-柔美雅致,为你心动-空间效果图 134平滨湖一号现代风格-柔美雅致,为你心动-空间效果图 134平滨湖一号现代风格-柔美雅致,为你心动-空间效果图
主体风格以现代简约为主电视背景墙以连纹岩板为主体,加两道金属线条,简约又大方
134平滨湖一号现代风格-柔美雅致,为你心动-空间效果图
餐厅顶部做悬空无主灯设计,搭配简约带灯带的餐边酒柜,更显突出
134平滨湖一号现代风格-柔美雅致,为你心动-空间效果图
主卧现代简约,床头背景墙为近些年流行的栅格木和硬包组合
#  现代简约  134m²  3室  效果图  #
158
不喜欢
猜你喜欢
关闭
按此效果装修多少钱?
电话咨询 在线咨询 算算我家报价
按此效果装修多少钱?
按此效果装修多少钱?
更多相似风格效果
按此效果装修多少钱?
更多相似风格效果
按此效果装修多少钱?
更多相似风格效果
按此效果装修多少钱?
更多相似风格效果
按此效果装修多少钱?
更多相似风格效果
按此效果装修多少钱?