首页 > 裝修案例 > 260平世纪天城新中式风格

260平世纪天城新中式风格

风格:雅致新中 面积:260m² 户型:别墅 小区: 世纪天城
业主需求
260平世纪天城新中式风格-业主需求
整体采用对称的构建方式、稳重治静,然小处则以小品式构图布景、以表主人的生活雅趣。大理石的自然纹理,木材的敦厚温润的质感,棉麻素锦的布艺材质皆蕴含晓自然的宗禅意境。
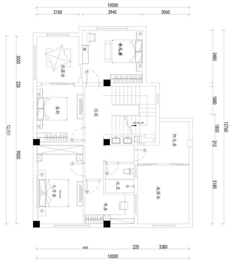
平面布置图
260平世纪天城新中式风格-平面布置图 260平世纪天城新中式风格-平面布置图 260平世纪天城新中式风格-平面布置图
一楼至三楼平面设计图展示,少了热闹色彩的欢腾,中式意境是波澜不惊,一幅闲云野鹤的悠远之意,低调谦和的姿态与朴实宁静的意境。
空间效果图
260平世纪天城新中式风格-空间效果图
▲整体采用对称的构建方式、稳重治静,然小处则以小品式构图布景、以表主人的生活雅趣。大理石的自然纹理,木材的敦厚温润的质感,棉麻素锦的布艺材质皆蕴含晓自然的宗禅意境。 ▲灰色的地面沉稳包容,白色的墙壁与天花几道深邃线条勾勒轮廓;一片雪白中,宛若崇山峻岭、寒山远黛之景,又如无边海水,绵延起伏、皱起波澜,朴素大方凝结其中,简约大气流转成歌。
260平世纪天城新中式风格-空间效果图
拾级而上,置身于餐厅。偏现代感的餐桌搭配中式吊灯体现中国现代中式的概念美,吊灯配以酒柜中艺术画,让原本的棋牌区域彰显文化气息。
260平世纪天城新中式风格-空间效果图
▲主人休憩之室、唯静为上。安静雅致的白鹭色壁纸与平和沉稳的木色相得益彰,奠定了整个卧室素雅简净的居住格;定制的剑麻地毯选用蓝色的轮廓勾勒,与藏蓝色床品相辅相成, 而床头蓝白山水壁画烟波浩渺,内敛而沉寂,大气不失秀丽。室内远山如黛,窗外碧湖幽幽,一幅宁静优美的江南山水写意画卷描绘在立体的空间中
#  雅致新中  260m²  别墅  效果图  #
118
不喜欢
猜你喜欢
关闭
按此效果装修多少钱?
电话咨询 在线咨询 算算我家报价
按此效果装修多少钱?
按此效果装修多少钱?
按此效果装修多少钱?
按此效果装修多少钱?
更多相似风格效果
按此效果装修多少钱?
更多相似风格效果
按此效果装修多少钱?
更多相似风格效果
按此效果装修多少钱?