首页 > 裝修案例 > 140平东方御园现代风格-精致轻奢双层洋房案例

140平东方御园现代风格-精致轻奢双层洋房案例

风格:现代简约 面积:140m² 户型:4室 小区: 东方御园
业主需求
140平东方御园现代风格-精致轻奢双层洋房案例-业主需求 140平东方御园现代风格-精致轻奢双层洋房案例-业主需求
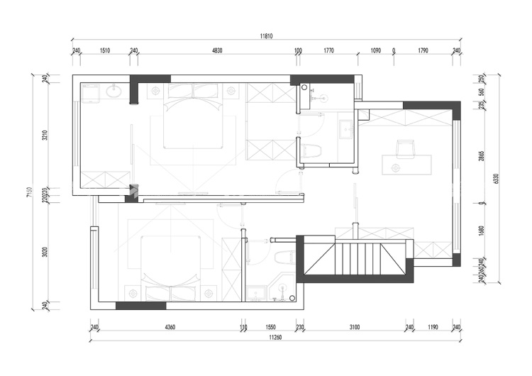
整体空间格局方正。一楼独立入户玄关,超大面积挑高餐客厅连通景观阳台,极致视野自在随心。二楼超大挑高空间,可改造成客厅或卧室,灵动空间随心所欲;朝南带飘窗独立套间,尊享舒适空间。
平面布置图
140平东方御园现代风格-精致轻奢双层洋房案例-平面布置图 140平东方御园现代风格-精致轻奢双层洋房案例-平面布置图
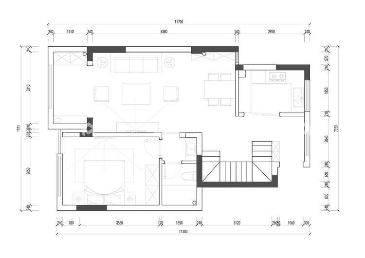
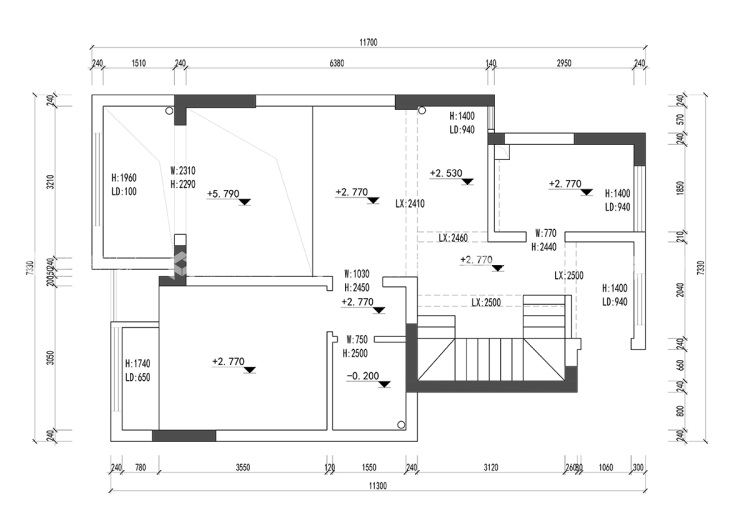
设计师进行改造后,成为四室两厅一厨三卫两阳台。一楼朝南套间将飘窗拆除,扩大使用面积。二楼将挑高空间浇筑楼板连通阳台与小房间形成完美套间作为主卧;小孩房拆除飘窗,扩大使用面积 ;朝北两个房间打通设计成超大书房,满足业主办公需求。
3D全景图
140平东方御园现代风格-精致轻奢双层洋房案例-3D全景图图标 140平东方御园现代风格-精致轻奢双层洋房案例全景图封面图
#  现代简约  140m²  4室  效果图  #
179
不喜欢
猜你喜欢
关闭
按此效果装修多少钱?
电话咨询 在线咨询 算算我家报价
按此效果装修多少钱?
按此效果装修多少钱?
按此效果装修多少钱?
按此效果装修多少钱?