首页 > 裝修案例 > 105平海岸城现代风格

105平海岸城现代风格

风格:现代简约 面积:105m² 户型:3室 小区: 海岸城
业主需求
105平海岸城现代风格-业主需求
本案户型布局分配明确,房间方正,南北通透,无需做较大改动。
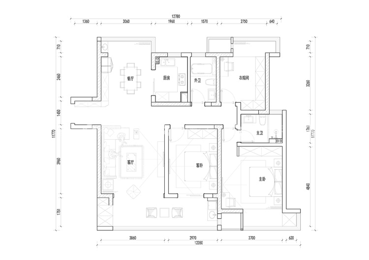
平面布置图
105平海岸城现代风格-平面布置图
设计师稍作改造后,成为三室两厅一厨二卫。客厅阳台较大,加入茶几座椅供休闲娱乐。北面房间设计成书房,满足业主办公需求。
3D全景图
105平海岸城现代风格-3D全景图图标 105平海岸城现代风格全景图封面图
#  现代简约  105m²  3室  效果图  #
190
不喜欢
猜你喜欢
关闭
按此效果装修多少钱?
电话咨询 在线咨询 算算我家报价
按此效果装修多少钱?
按此效果装修多少钱?