首页 > 裝修案例 > 75平华发首府现代风格-精致轻奢案例

75平华发首府现代风格-精致轻奢案例

风格:现代简约 面积:75m² 户型:3室 小区: 华发首府
业主需求
75平华发首府现代风格-精致轻奢案例-业主需求
整体空间紧凑,布局合理,动线通达。业主有自己的需求和想法,喜欢现代轻奢风格,注重质感。以此为基础深入沟通,开始深化设计。
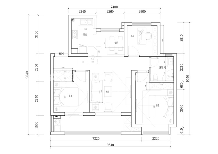
平面布置图
75平华发首府现代风格-精致轻奢案例-平面布置图
设计师在客厅稍作改造后,成为三室两厅一厨一卫。进门右侧打通内外做柜,厨房做开放式,并设计了小吧台作为隔断;北面房间设计成书房,满足业主需求。
3D全景图
75平华发首府现代风格-精致轻奢案例-3D全景图图标 75平华发首府现代风格-精致轻奢案例全景图封面图
#  现代简约  75m²  3室  效果图  #
131
不喜欢
猜你喜欢
关闭
按此效果装修多少钱?
电话咨询 在线咨询 算算我家报价
按此效果装修多少钱?
按此效果装修多少钱?