首页 > 裝修案例 > 130平蠡湖一号简欧风格

130平蠡湖一号简欧风格

风格:原木风 面积:130m² 户型:4室 小区: 蠡湖一号
业主需求
130平蠡湖一号简欧风格-业主需求
整体空间宽敞,划分明确,动线通达,无需做较大改动。在设计方案中,业主喜欢简欧风格,注重质感。
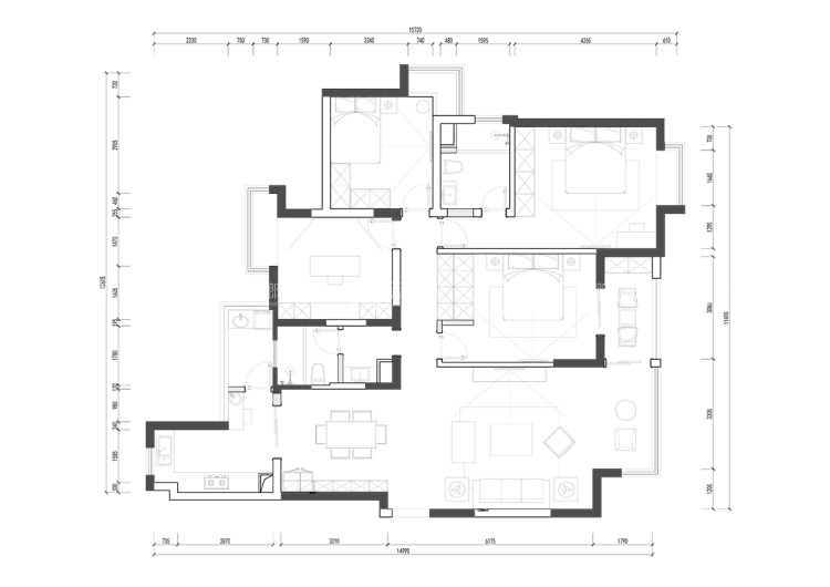
平面布置图
130平蠡湖一号简欧风格-平面布置图
设计师稍作改造后,成为四室两厅一厨二卫。移动北面小阳台隔墙,扩大厨房使用面积;拆除南面次卧与走廊隔墙,设计双面柜;北面小房间设计成书房,供业主在家办公。
3D全景图
130平蠡湖一号简欧风格-3D全景图图标 130平蠡湖一号简欧风格全景图封面图
#  原木风  130m²  4室  效果图  #
171
不喜欢
猜你喜欢
关闭
按此效果装修多少钱?
电话咨询 在线咨询 算算我家报价
按此效果装修多少钱?
按此效果装修多少钱?