首页 > 裝修案例 > 105平雅居乐北欧风格-别具一格的北欧风案例

105平雅居乐北欧风格-别具一格的北欧风案例

风格:原木风 面积:105m² 户型:4室 小区: 雅居乐
业主需求
105平雅居乐北欧风格-别具一格的北欧风案例-业主需求
整体空间划分明确,南北通透,动线通达。在设计方案中,业主有自己的需求和想法,喜欢北欧风格,注重色彩搭配。
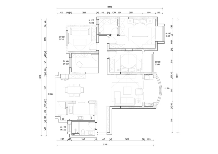
平面布置图
105平雅居乐北欧风格-别具一格的北欧风案例-平面布置图
设计师稍作改造后,成为四室两厅一厨一卫。将北面两个小房间改造成书房以及娱乐房;将北阳台与餐厅打通,扩大使用空间。
3D全景图
105平雅居乐北欧风格-别具一格的北欧风案例-3D全景图图标 105平雅居乐北欧风格-别具一格的北欧风案例全景图封面图
#  原木风  105m²  4室  效果图  #
160
不喜欢
猜你喜欢
关闭
按此效果装修多少钱?
电话咨询 在线咨询 算算我家报价
按此效果装修多少钱?
按此效果装修多少钱?