首页 > 裝修案例 > 70平江南府现代风格-黑白灰格调案例

70平江南府现代风格-黑白灰格调案例

风格:现代简约 面积:70m² 户型:2室 小区: 华润江南府
业主需求
70平江南府现代风格-黑白灰格调案例-业主需求
本案例整体空间紧凑,布局合理,动线通达。业主喜欢黑白灰格调的风格,注重色彩搭配及质感。
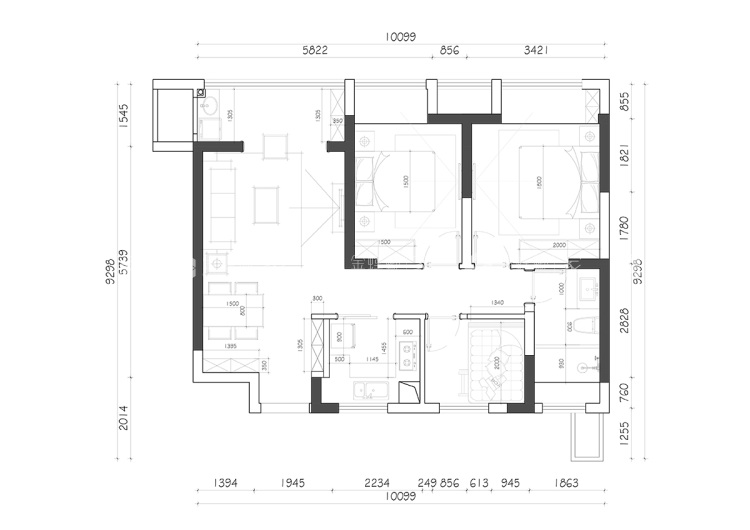
平面布置图
70平江南府现代风格-黑白灰格调案例-平面布置图
户型方正,设计师稍作改造后,成为三室两厅一厨一卫。进门右手边厨房门位置设计成入户鞋柜,厨房门改至走廊;北面小房间设计成休闲房,放入榻榻米。
3D全景图
70平江南府现代风格-黑白灰格调案例-3D全景图图标 70平江南府现代风格-黑白灰格调案例全景图封面图
#  现代简约  70m²  2室  效果图  #
113
不喜欢
猜你喜欢
关闭
按此效果装修多少钱?
电话咨询 在线咨询 算算我家报价
按此效果装修多少钱?
按此效果装修多少钱?