首页 > 裝修案例 > 105平江南府现代风格

105平江南府现代风格

风格:现代简约 面积:105m² 户型:3室 小区: 华润江南府
业主需求
105平江南府现代风格-业主需求
户型方正,整体空间紧凑,布局合理,动线通达。业主有自己的需求和想法,喜欢现代轻奢风格。
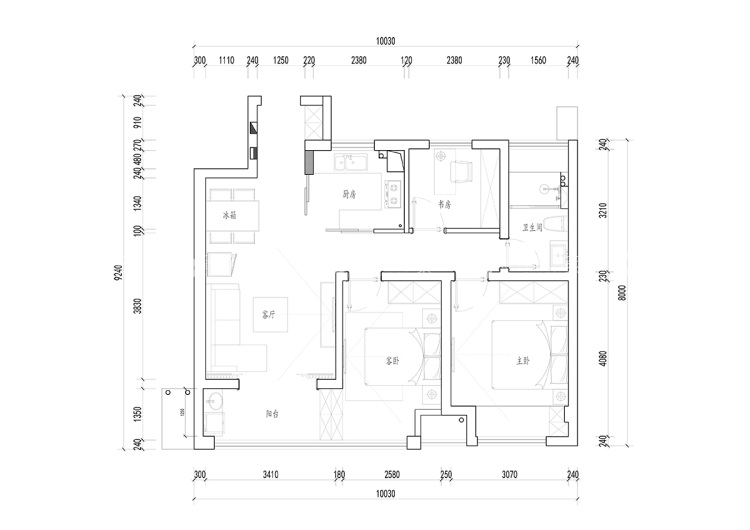
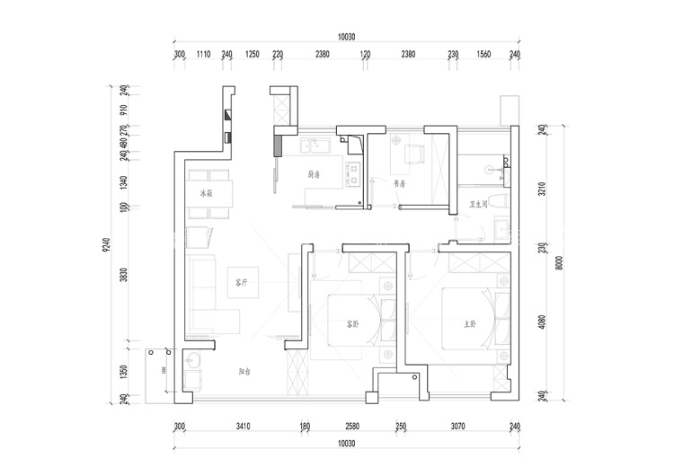
平面布置图
105平江南府现代风格-平面布置图
设计师稍作改造后,成为三室两厅一厨一卫。南边次卧与客厅阳台打通,做柜子形成隔断;厨房拆除一角,做两面移门使进门视野更通透。北面房间设计成书房,便于业主家庭办公。
3D全景图
105平江南府现代风格-3D全景图图标 105平江南府现代风格全景图封面图
#  现代简约  105m²  3室  效果图  #
168
不喜欢
猜你喜欢
关闭
按此效果装修多少钱?
电话咨询 在线咨询 算算我家报价
按此效果装修多少钱?
按此效果装修多少钱?