首页 > 裝修案例 > 90平江南府现代风格-舒适大气现代风案例

90平江南府现代风格-舒适大气现代风案例

风格:现代简约 面积:90m² 户型:3室 小区: 华润江南府
业主需求
90平江南府现代风格-舒适大气现代风案例-业主需求
整体户型方正,布局合理,动线通达。业主喜欢现代风格,要干净简洁,注重质感。
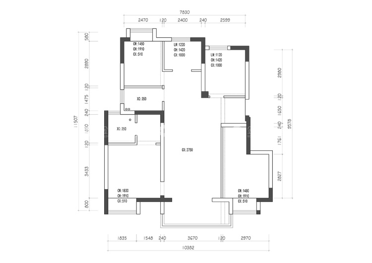
平面布置图
90平江南府现代风格-舒适大气现代风案例-平面布置图
设计师稍作改造后,成为三室两厅一厨二卫。将厨房与餐厅打通,做成开放式厨房;南面主卧和次卧的飘窗都拆除,扩大使用空间;将客厅空调外机处改造成了储物间,满足业主需求。
3D全景图
90平江南府现代风格-舒适大气现代风案例-3D全景图图标 90平江南府现代风格-舒适大气现代风案例全景图封面图
#  现代简约  90m²  3室  效果图  #
106
不喜欢
猜你喜欢
关闭
按此效果装修多少钱?
电话咨询 在线咨询 算算我家报价
按此效果装修多少钱?
按此效果装修多少钱?