首页 > 裝修案例 > 92平金科世界城现代风格

92平金科世界城现代风格

风格:现代简约 面积:92m² 户型:3室 小区: 金科世界城
业主需求
92平金科世界城现代风格-业主需求
整体空间宽敞,布局合理,动线通达,业主有自己的需求和想法,喜欢现代风格,要干净简约。
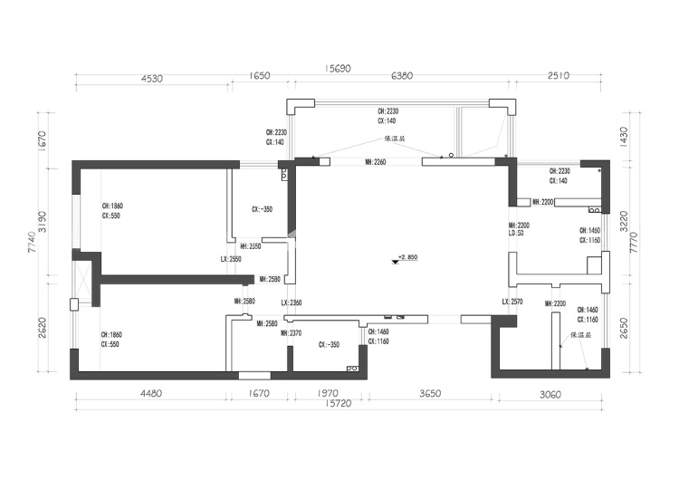
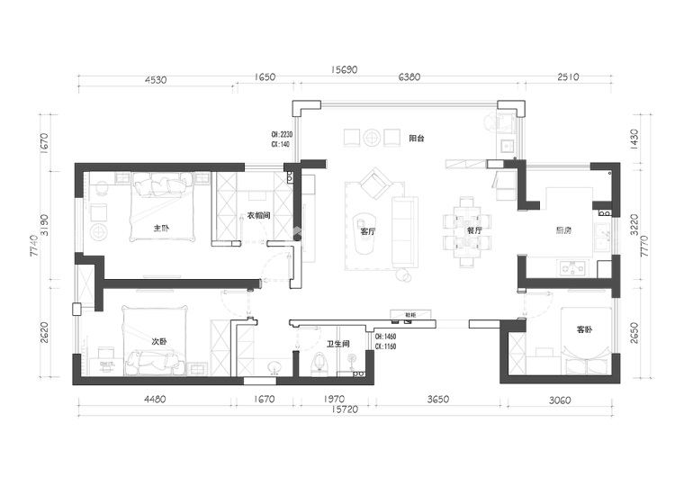
平面布置图
92平金科世界城现代风格-平面布置图
设计师稍作改造后,成为三室两厅一厨一卫。客厅阳台拆除空调外机围栏和部分隔墙,扩大阳台使用面积的同时,也使客厅看上去更加宽敞;打通厨房与里面储物间,加强厨房深度;将进门右侧两部分小空间打通做成客卧;拆除主卧和次卧的飘窗,扩大使用面积;主卧卫生间改造成衣帽间,满足业主需求。
3D全景图
92平金科世界城现代风格-3D全景图图标 92平金科世界城现代风格全景图封面图
#  现代简约  92m²  3室  效果图  #
152
不喜欢
猜你喜欢
关闭
按此效果装修多少钱?
电话咨询 在线咨询 算算我家报价
按此效果装修多少钱?
按此效果装修多少钱?