首页 > 裝修案例 > 85平美的公园天新中式风格

85平美的公园天新中式风格

风格:雅致新中 面积:85m² 户型:3室 小区: 美的公园天下
业主需求
85平美的公园天新中式风格-业主需求
整体空间布局合理,动线通达。业主有自己的需求和想法,喜欢新中式分格,优雅温馨一些。
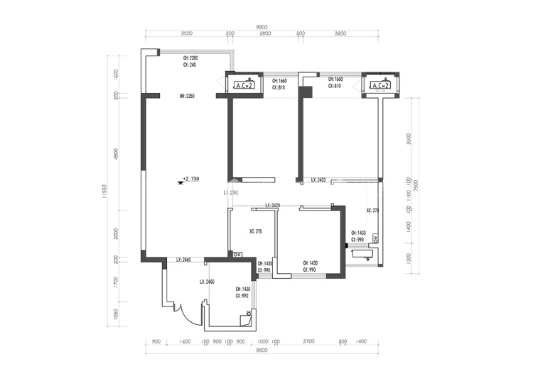
平面布置图
85平美的公园天新中式风格-平面布置图
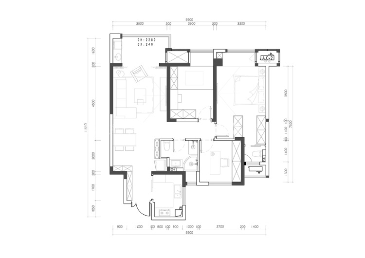
设计师稍作改造后,成为三室两厅一厨一卫。北面卧室改造成书房,供业主在家办公;主卧敲到隔墙连通内卫,设计成衣帽间步入内卫。
3D全景图
85平美的公园天新中式风格-3D全景图图标 85平美的公园天新中式风格全景图封面图
#  雅致新中  85m²  3室  效果图  #
151
不喜欢
猜你喜欢
关闭
按此效果装修多少钱?
电话咨询 在线咨询 算算我家报价
按此效果装修多少钱?
按此效果装修多少钱?