首页 > 裝修案例 > 78平观山泓郡简美风格

78平观山泓郡简美风格

风格:其他 面积:78m² 户型:2室 小区: 万业观山泓郡
业主需求
78平观山泓郡简美风格-业主需求
整体户型紧凑,空间划分明确。在设计方案中,业主想要美式风格,整体设计偏简单一些。
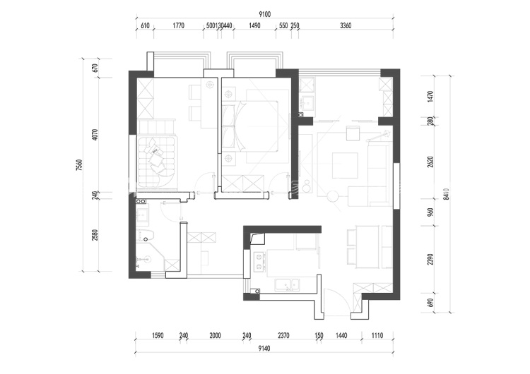
平面布置图
78平观山泓郡简美风格-平面布置图
设计师稍作改造后,成为三室两厅一厨二卫。北面水泥浇筑出一个小房间作为书房,供业主在家办公;应业主需求,主卧设计成儿童房,放入高低床和书桌。
3D全景图
78平观山泓郡简美风格-3D全景图图标 78平观山泓郡简美风格全景图封面图
#  其他  78m²  2室  效果图  #
192
不喜欢
猜你喜欢
关闭
按此效果装修多少钱?
电话咨询 在线咨询 算算我家报价
按此效果装修多少钱?
按此效果装修多少钱?