首页 > 裝修案例 > 108平中建溪岸观邸简欧风格

108平中建溪岸观邸简欧风格

风格:原木风 面积:108m² 户型:3室 小区: 中建溪岸观邸
业主需求
108平中建溪岸观邸简欧风格-业主需求
整体户型方正,空间划分明确,动线通达。在设计方案中,业主喜欢简欧风格,想要优雅舒适的感觉。
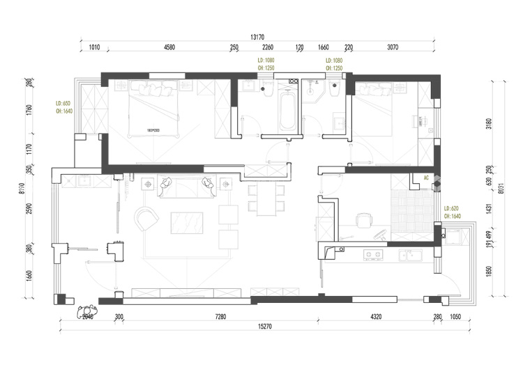
平面布置图
108平中建溪岸观邸简欧风格-平面布置图
设计师稍作改造后,成为三室两厅一厨二卫。进门对面隔墙拆除,做移门隔断,,使动线更通达;北面两个房间应业主需求分别设计成小孩房和书房。
3D全景图
108平中建溪岸观邸简欧风格-3D全景图图标 108平中建溪岸观邸简欧风格全景图封面图
#  原木风  108m²  3室  效果图  #
133
不喜欢
猜你喜欢
关闭
按此效果装修多少钱?
电话咨询 在线咨询 算算我家报价
按此效果装修多少钱?
按此效果装修多少钱?