首页 > 裝修案例 > 90平梁溪警苑美式风格

90平梁溪警苑美式风格

风格:其他 面积:90m² 户型:3室 小区: 梁溪警苑
业主需求
90平梁溪警苑美式风格-业主需求
户型方正,整体空间划分明确,南北通透,动线通达。在设计方案中,业主想要美式风格,注重质感,精致不乏温馨。
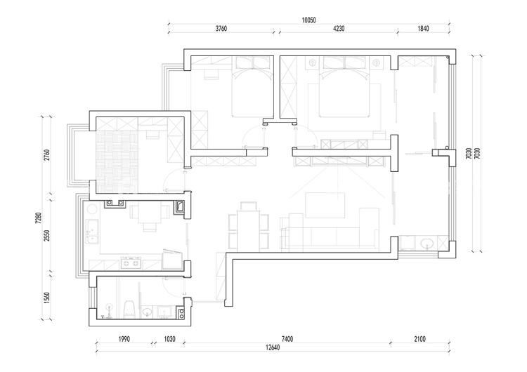
平面布置图
90平梁溪警苑美式风格-平面布置图
设计师稍作改造后,成为三室两厅一厨一卫。将厨房与北阳台打通,扩大厨房使用面积;东边两卧室进门朝向应业主要求改成南北朝向。
3D全景图
90平梁溪警苑美式风格-3D全景图图标 90平梁溪警苑美式风格全景图封面图
#  其他  90m²  3室  效果图  #
115
不喜欢
猜你喜欢
关闭
按此效果装修多少钱?
电话咨询 在线咨询 算算我家报价
按此效果装修多少钱?
按此效果装修多少钱?