首页 > 裝修案例 > 158平中海珑玺现代风格双层别墅

158平中海珑玺现代风格双层别墅

风格:现代简约 面积:158m² 户型:4室 小区: 中海珑玺
业主需求
158平中海珑玺现代风格双层别墅-业主需求 158平中海珑玺现代风格双层别墅-业主需求
整体空间宽敞大气,布局明确,动线通达。业主喜欢现代风格,偏爱原木色,要干净简洁些。以此为基础,再深入沟通,然后进行深化设计。
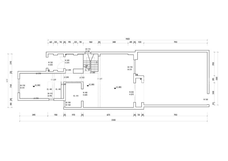
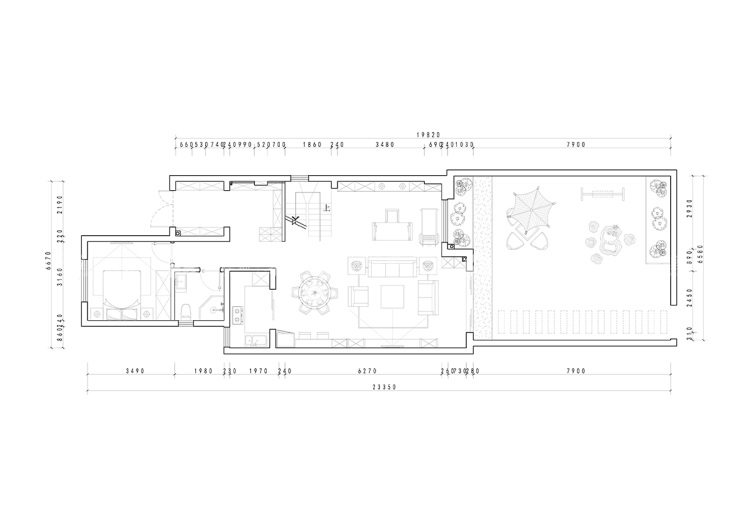
平面布置图
158平中海珑玺现代风格双层别墅-平面布置图 158平中海珑玺现代风格双层别墅-平面布置图
设计师稍作改造后,成为五室两厅一厨三卫。一楼入户两边做鞋柜以及装饰柜,加大储物空间;二楼分别设计书房以及小孩房,满足业主所有需求。
3D全景图
158平中海珑玺现代风格双层别墅-3D全景图图标 158平中海珑玺现代风格双层别墅全景图封面图
#  现代简约  158m²  4室  效果图  #
180
不喜欢
猜你喜欢
关闭
按此效果装修多少钱?
电话咨询 在线咨询 算算我家报价
按此效果装修多少钱?
按此效果装修多少钱?
按此效果装修多少钱?
按此效果装修多少钱?