首页 > 裝修案例 > 120平时代上城现代风格-建筑历史痕迹中的灵感

120平时代上城现代风格-建筑历史痕迹中的灵感

风格:现代简约 面积:120m² 户型:3室 小区: 时代上城
业主需求
120平时代上城现代风格-建筑历史痕迹中的灵感-业主需求
户型较为紧凑,业主想营造持久耐用,粗狂坚韧,外表冷峻,酷感十足的氛围。
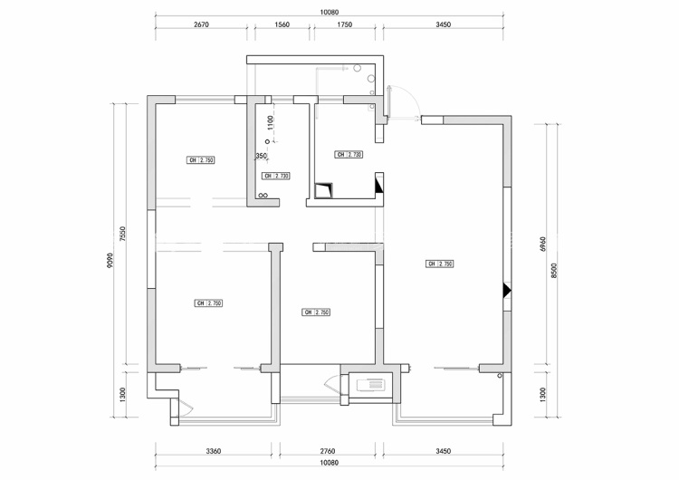
平面布置图
120平时代上城现代风格-建筑历史痕迹中的灵感-平面布置图
原结构较少修改,做旧的家具能够轻松融入工业风,拥有天然纹路和斑驳质感的原木家具也非常合适,而金属元素的各类家具,更是工业风的不二之选。
3D全景图
120平时代上城现代风格-建筑历史痕迹中的灵感-3D全景图图标 120平时代上城现代风格-建筑历史痕迹中的灵感全景图封面图
#  现代简约  120m²  3室  效果图  #
111
不喜欢
猜你喜欢
关闭
按此效果装修多少钱?
电话咨询 在线咨询 算算我家报价
按此效果装修多少钱?
按此效果装修多少钱?