首页 > 裝修案例 > 120平时代上城现代风格-现代风的奇思妙想

120平时代上城现代风格-现代风的奇思妙想

风格:现代简约 面积:120m² 户型:3室 小区: 时代上城
业主需求
120平时代上城现代风格-现代风的奇思妙想-业主需求
常规的方正户型,房间布局分配明确,业主希望具有时尚、舒适、实用美观的居住感受。
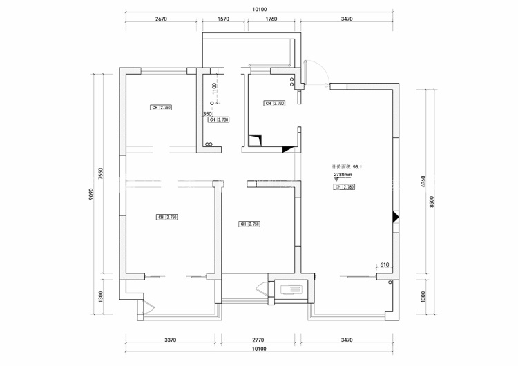
平面布置图
120平时代上城现代风格-现代风的奇思妙想-平面布置图
设计师采用现代风设计风格,色彩跳跃,沙发背景墙的挂画,夸张大胆而灵活,不单是对现代风格家居的遵循,也是个性的展示。整个客厅以木色背景墙为衬托,黄色的沙发,时尚夸张的挂画为衬托,张扬而协调。
3D全景图
120平时代上城现代风格-现代风的奇思妙想-3D全景图图标 120平时代上城现代风格-现代风的奇思妙想全景图封面图
#  现代简约  120m²  3室  效果图  #
149
不喜欢
猜你喜欢
关闭
按此效果装修多少钱?
电话咨询 在线咨询 算算我家报价
按此效果装修多少钱?
按此效果装修多少钱?