首页 > 裝修案例 > 140平玉兰花园简美风格-颜值与实用并存的闲居

140平玉兰花园简美风格-颜值与实用并存的闲居

风格:其他 面积:140m² 户型:3室 小区: 玉兰花园
业主需求
140平玉兰花园简美风格-颜值与实用并存的闲居-业主需求
户型客厅宽敞,房间以套房为主,南北通透,两边阳台可以很好的划分使用区域,业主向往简洁优雅,温馨舒适的居住氛围。
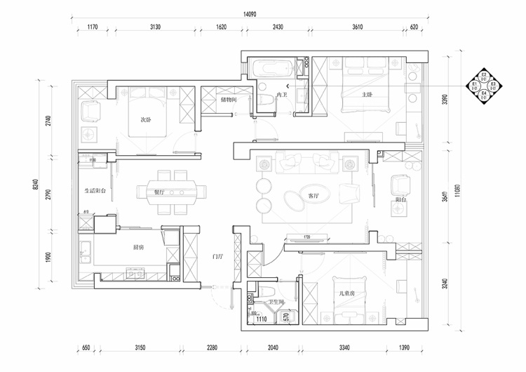
平面布置图
140平玉兰花园简美风格-颜值与实用并存的闲居-平面布置图
设计师遵从简美风格的特点,让空间给人一种简约大气的气息,没有反复的空间布局,没有多余的设计,每处都格外的干净利落,简洁而优雅,让人感觉温暖而舒适。
3D全景图
140平玉兰花园简美风格-颜值与实用并存的闲居-3D全景图图标 140平玉兰花园简美风格-颜值与实用并存的闲居全景图封面图
#  其他  140m²  3室  效果图  #
122
不喜欢
猜你喜欢
关闭
按此效果装修多少钱?
电话咨询 在线咨询 算算我家报价
按此效果装修多少钱?
按此效果装修多少钱?