首页 > 裝修案例 > 158平长安人家简美风格-素雅温馨的简美之家

158平长安人家简美风格-素雅温馨的简美之家

风格:其他 面积:158m² 户型:4室 小区: 长安人家
业主需求
158平长安人家简美风格-素雅温馨的简美之家-业主需求 158平长安人家简美风格-素雅温馨的简美之家-业主需求
该户型分为两层,南北通透,客厅阳台采光良好,厨房开阔,可以每层划分不同的功能区域,不互相影响。业主希望让家充满浪漫与温馨的氛围。
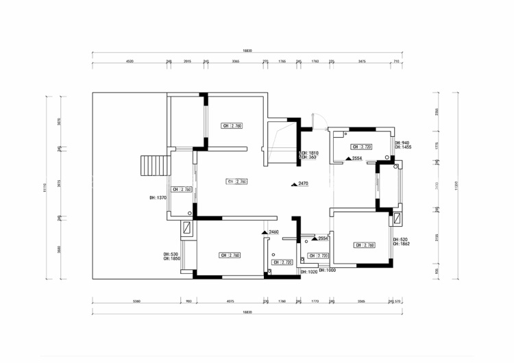
平面布置图
158平长安人家简美风格-素雅温馨的简美之家-平面布置图 158平长安人家简美风格-素雅温馨的简美之家-平面布置图
一楼以常规居住为主,二楼布置了娱乐空间,让家更有生活的乐趣,破传统美式色彩的沉重,减少复杂元素的堆砌,将装饰元素简化到极致,营造出更加简洁明快的视觉效果,却依旧不失温馨与浪漫。
3D全景图
158平长安人家简美风格-素雅温馨的简美之家-3D全景图图标 158平长安人家简美风格-素雅温馨的简美之家全景图封面图
#  其他  158m²  4室  效果图  #
148
不喜欢
猜你喜欢
关闭
按此效果装修多少钱?
电话咨询 在线咨询 算算我家报价
按此效果装修多少钱?
按此效果装修多少钱?
按此效果装修多少钱?
按此效果装修多少钱?