首页 > 裝修案例 > 89平九龙仓碧玺现代风格

89平九龙仓碧玺现代风格

风格:现代简约 面积:89m² 户型:3室 小区: 九龙仓碧玺
业主需求
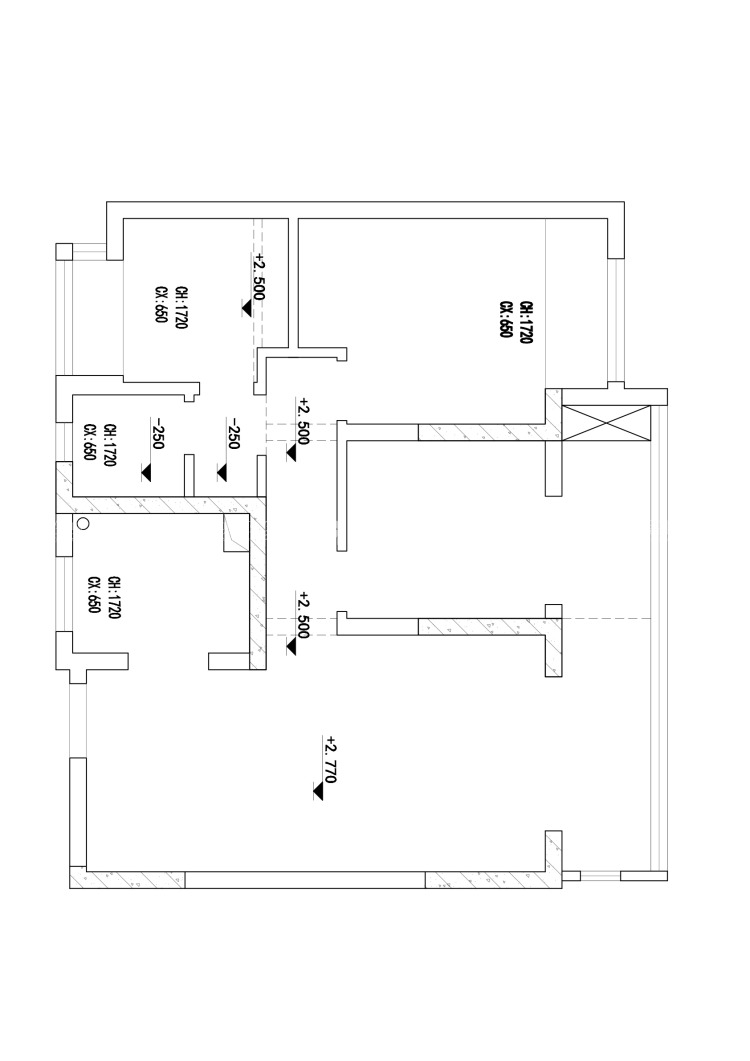
89平九龙仓碧玺现代风格-业主需求
原始结构南北通透,三开朝南,很适合居住,加上整体三房,可塑性比较高。
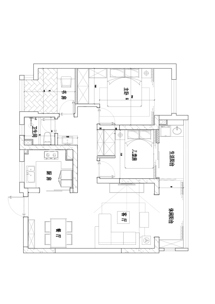
平面布置图
89平九龙仓碧玺现代风格-平面布置图
整体色调上运用了多数为黑白灰的穿插,比较经典,整体色调会偏暗,可通过照明去提升色度。
3D全景图
89平九龙仓碧玺现代风格-3D全景图图标 89平九龙仓碧玺现代风格全景图封面图
#  现代简约  89m²  3室  效果图  #
156
不喜欢
猜你喜欢
关闭
按此效果装修多少钱?
电话咨询 在线咨询 算算我家报价
按此效果装修多少钱?
按此效果装修多少钱?