首页 > 裝修案例 > 220平中央御景新中式风格-很适合年轻人

220平中央御景新中式风格-很适合年轻人

风格:雅致新中 面积:220m² 户型:4室 小区: 中央御景
业主需求
220平中央御景新中式风格-很适合年轻人-业主需求
业主是标准的五口之家,希望住的房子有质感,房主是中年男性,希望房子能够稳重大气,但是也不喜欢太复杂。
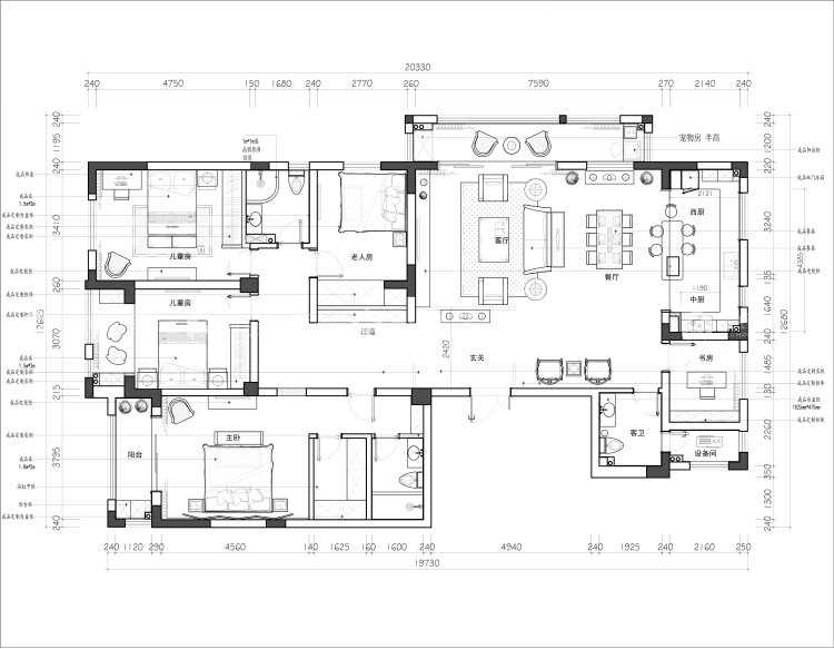
平面布置图
220平中央御景新中式风格-很适合年轻人-平面布置图
本案以胡桃木色为主色调,为整个家铺垫一层沉稳的基调,又搭配香槟金不锈钢线条和深色护墙勾勒出中式的感觉。
空间效果图
220平中央御景新中式风格-很适合年轻人-空间效果图 220平中央御景新中式风格-很适合年轻人-空间效果图
客厅大量的木饰面及金属线条勾勒出低调奢华的感觉。电视背景UV板+山水风格硬包
220平中央御景新中式风格-很适合年轻人-空间效果图
客餐厅相连,视觉感非常好
220平中央御景新中式风格-很适合年轻人-空间效果图
主卧卫生间墙开窗洞增加采光,背景墙亚麻材质硬包烘托新中式的质感
#  雅致新中  220m²  4室  效果图  #
180
不喜欢
猜你喜欢
关闭
按此效果装修多少钱?
电话咨询 在线咨询 算算我家报价
按此效果装修多少钱?
按此效果装修多少钱?
更多相似风格效果
按此效果装修多少钱?
更多相似风格效果
按此效果装修多少钱?
更多相似风格效果
按此效果装修多少钱?
更多相似风格效果
按此效果装修多少钱?