首页 > 裝修案例 > 127平宝能城现代风格-简于形,奢于心

127平宝能城现代风格-简于形,奢于心

风格:现代简约 面积:127m² 户型:3室 小区: 宝能城
业主需求
127平宝能城现代风格-简于形,奢于心-业主需求
本案位于太湖新城吴都路和观顺道交汇处,整个户型南北通透,布局合理,功能区分合理。整体风格为现代轻奢,现代风加上轻奢,再简单中营造奢华,现代都市干练简洁的浅奢气息,居家烟火气的温馨写意。
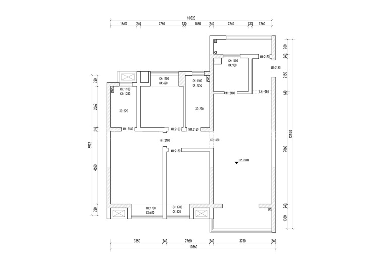
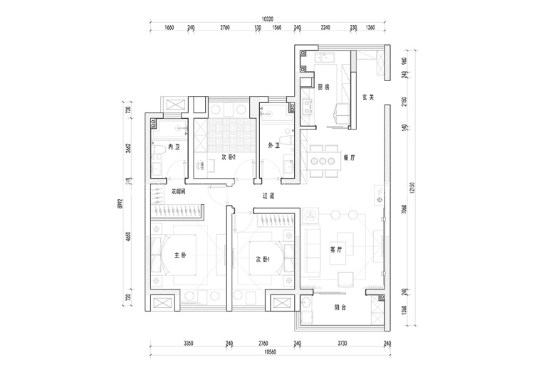
平面布置图
127平宝能城现代风格-简于形,奢于心-平面布置图
设计师把北阳台隔开,在入门出设玄关,并将厨房空间扩大,使整个空间布局更加合理。主卧空间较大,设计师在主卧加入了衣帽间,增加了空间利用率,储物功能。
3D全景图
127平宝能城现代风格-简于形,奢于心-3D全景图图标 127平宝能城现代风格-简于形,奢于心全景图封面图
#  现代简约  127m²  3室  效果图  #
132
不喜欢
猜你喜欢
关闭
按此效果装修多少钱?
电话咨询 在线咨询 算算我家报价
按此效果装修多少钱?
按此效果装修多少钱?