首页 > 裝修案例 > 120平红豆香江豪庭现代风格-简而不单的生活

120平红豆香江豪庭现代风格-简而不单的生活

风格:现代简约 面积:120m² 户型:3室 小区: 红豆香江豪庭
业主需求
120平红豆香江豪庭现代风格-简而不单的生活-业主需求
本案位于兴吴路83号,整个户型空间布局紧凑,分寸必用,利用率高。整体风格为现代风,简约风格追求的是空间的灵活和实用性,在设计上根据空间之间相互的功能关系而互相渗透,让空间的利用率达到最高。
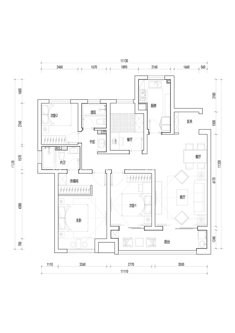
平面布置图
120平红豆香江豪庭现代风格-简而不单的生活-平面布置图
整个空间布局比较紧凑,在入门处设玄关,餐厅与客厅相连,扩大视觉感受。外卫干湿分离,主卧设衣帽间,增加储物功能,更加合理的加大空间使用率。
3D全景图
120平红豆香江豪庭现代风格-简而不单的生活-3D全景图图标 120平红豆香江豪庭现代风格-简而不单的生活全景图封面图
#  现代简约  120m²  3室  效果图  #
106
不喜欢
猜你喜欢
关闭
按此效果装修多少钱?
电话咨询 在线咨询 算算我家报价
按此效果装修多少钱?
按此效果装修多少钱?